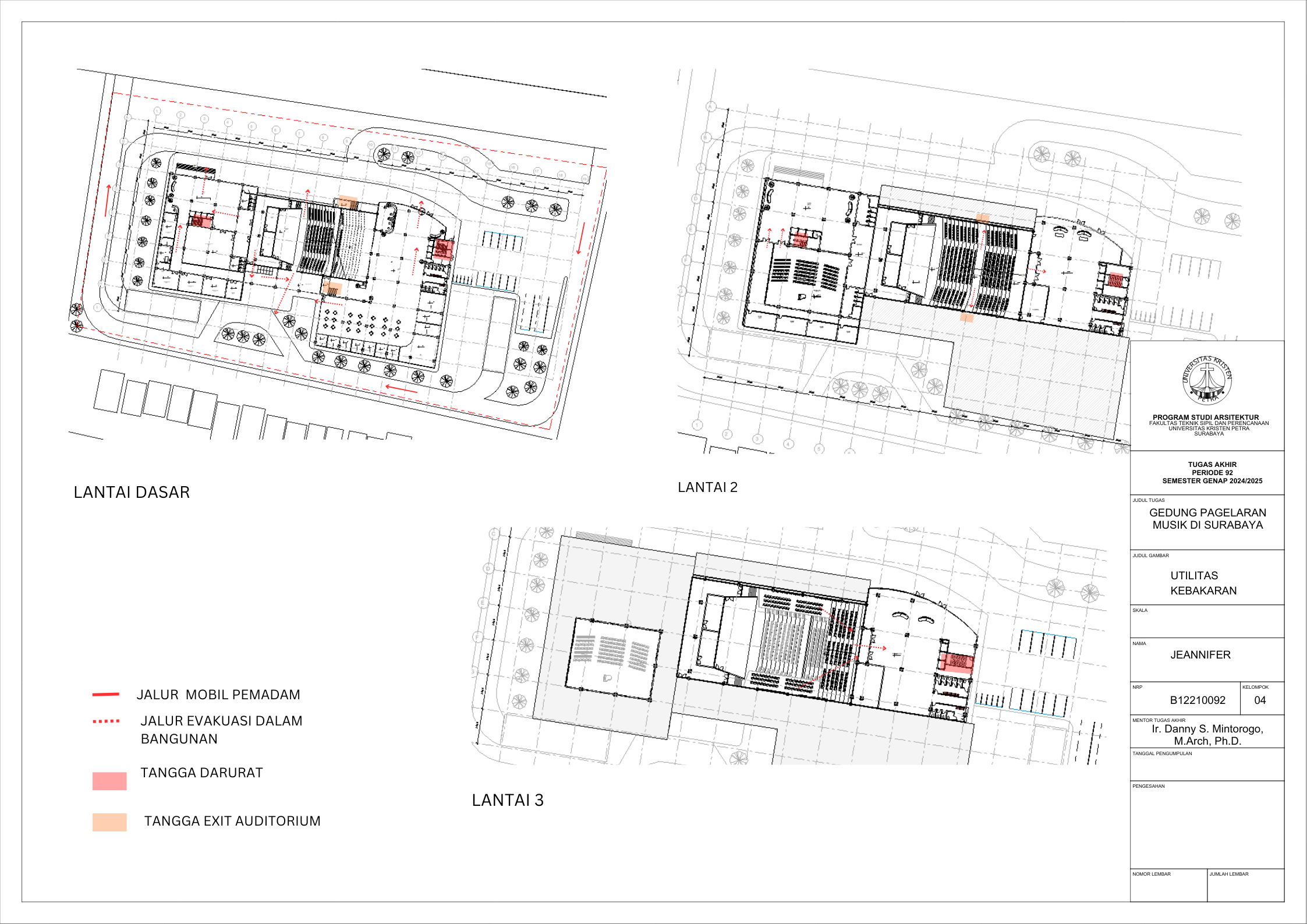
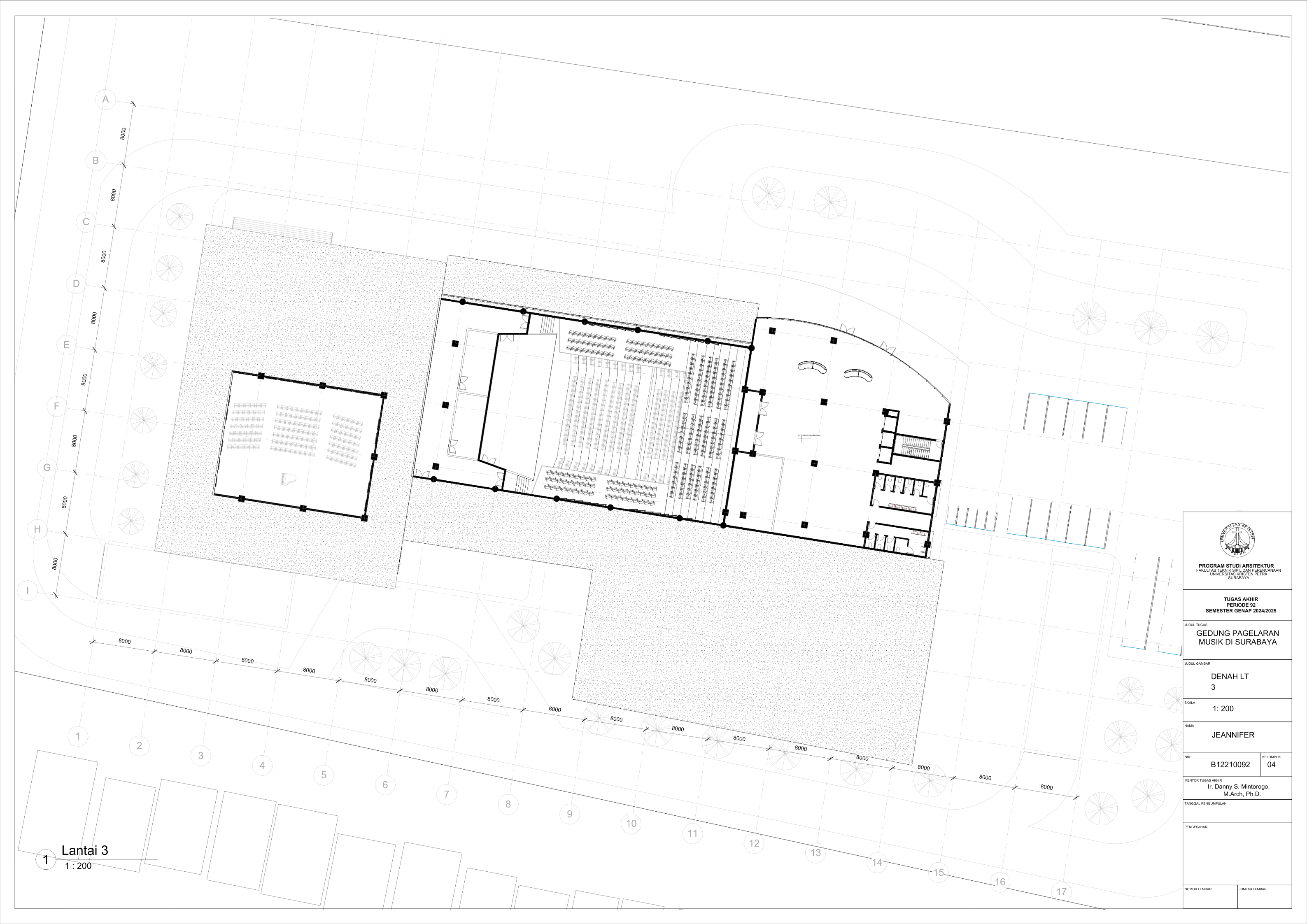
Gedung pagelaran musik di Surabaya

Seni merupakan suatu bentuk mengekspresikan budaya dan juga perasaan yang sering dikaitkan dengan unsur keindahan. Sejak zaman dahulu, masyarakat mengekspresikan kehidupan dan kebudayaan mereka melalui seni diantaranya adalah seni musik. Selain sebagai alat untuk berekspresi dan cermin untuk suatu kebudayaan, seni juga sebagai salah satu bentuk hiburan. Setiap daerah di Indonesia memiliki kebudayaan yang berbeda-beda sehingga masing-masing daerah memiliki suatu keunikan pada keseniannya. Salah satu contohnya adalah adanya perbedaan alat musik tradisional yang berasal dari Jawa Timur dengan daerah lainnya. Globalisasi dan perkembangan zaman membuat musik tradisional mulai kurang dikenali oleh generasi muda. Kurangnya perhatian pemerintah terkait pelestarian musik tradisional dan apresiasi kepada musisi juga mengakibatkan kurang adanya tempat yang dapat mewadahi bakat dan kreativitas para musisi tersebut di Surabaya. Oleh karena itu, diperlukan sebuah gedung pertunjukan yang dapat mewadahi pertunjukan alat musik klasik maupun tradisional sebagai upaya pelestarian budaya dan peningkatan apresiasi terhadap musisi.

JEANNIFER Danny Santoso Mintorogo (Advisor 1); Bramasta Putra Redyantanu (Examination Committee 1); Rully Damayanti (Examination Committee 2); Altrerosje Asri, S.T., M.T. (Examination Committee 3); Bram Michael Wayne, S.T., M.Ars. (Examination Committee 4); Esti Asih Nurdiah, S.T., M.T., Ph.D. (Examination Committee 5); Wanda Widigdo Canadarma (Examination Committee 6) Universitas Kristen Petra Indonesian Digital Theses Undergraduate Thesis Laporan Perancangan Arsitektur Laporan Perancangan Arsitektur No. 00024677/ARS/2025; Jeannifer (B12210092) MUSIC-HALLS--DESIGNS AND PLANS

Files