Islamic boarding school di Banjarmasin untuk SMP dan SMA

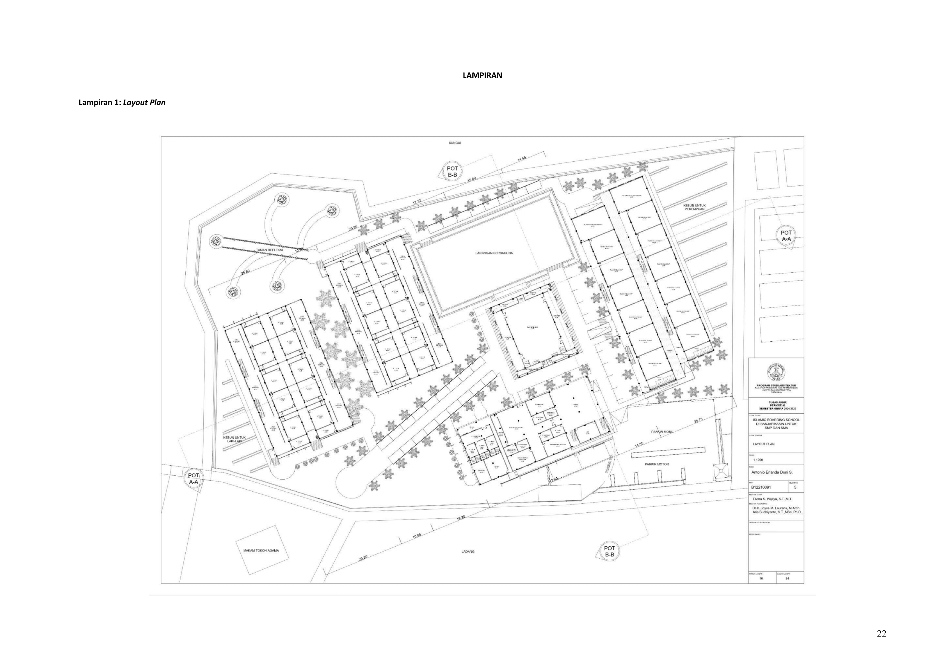
Perancangan Islamic Boarding School di Banjarmasin bertujuan menjawab permasalahan kriminalitas terhadap anak yang semakin meningkat di lingkungan pendidikan. Desain sekolah ini menerapkan metode Crime Prevention Through Environmental Design (CPTED) dengan pendekatan perilaku yang mengutamakan keamanan, pengawasan alami, dan pengendalian akses. Penataan zona berdasarkan Rukun Iman diintegrasikan dalam masterplan untuk membentuk lingkungan belajar yang aman, nyaman, dan religius. Hasil perancangan menunjukkan terciptanya pemisahan jalur yang jelas antara siswa putra dan putri, pengawasan efektif melalui tata letak bangunan, serta sirkulasi yang terkontrol untuk meminimalisir potensi kejahatan. Vista ke arah makam tokoh Islam menjadi elemen penguat spiritual yang terhubung secara visual dari beberapa titik penting dalam kawasan. Desain ini diharapkan dapat membentuk karakter religius, meningkatkan rasa aman, serta menciptakan lingkungan pendidikan yang positif bagi siswa.

ANTONIO ERLANDA DONI SAPUTRA Joyce M.Laurens (Advisor 1); Aris Budhiyanto, S.T., M.Sc., Ph.D. (Examination Committee 1); Elvina Shanggrama Wijaya, S.T., M.T. (Examination Committee 2); Roni Anggoro, S.T., M.A.Arch. (Examination Committee 3); Dr. Feny Elsiana, S.T., M.T. (Examination Committee 4); Luciana Kristanto, S.T., M.T. (Examination Committee 5) Universitas Kristen Petra Indonesian Digital Theses Undergraduate Thesis Laporan Perancangan Arsitektur Laporan Perancangan Arsitektur No. 00024676/ARS/2025; Antonio Erlanda Doni Saputra (B12210091) SCHOOL BUILDINGS; BOARDING SCHOOLS--DESIGNS AND PLANS

Files