Museum layangan tradisional Bali di Padang Galak, Bali

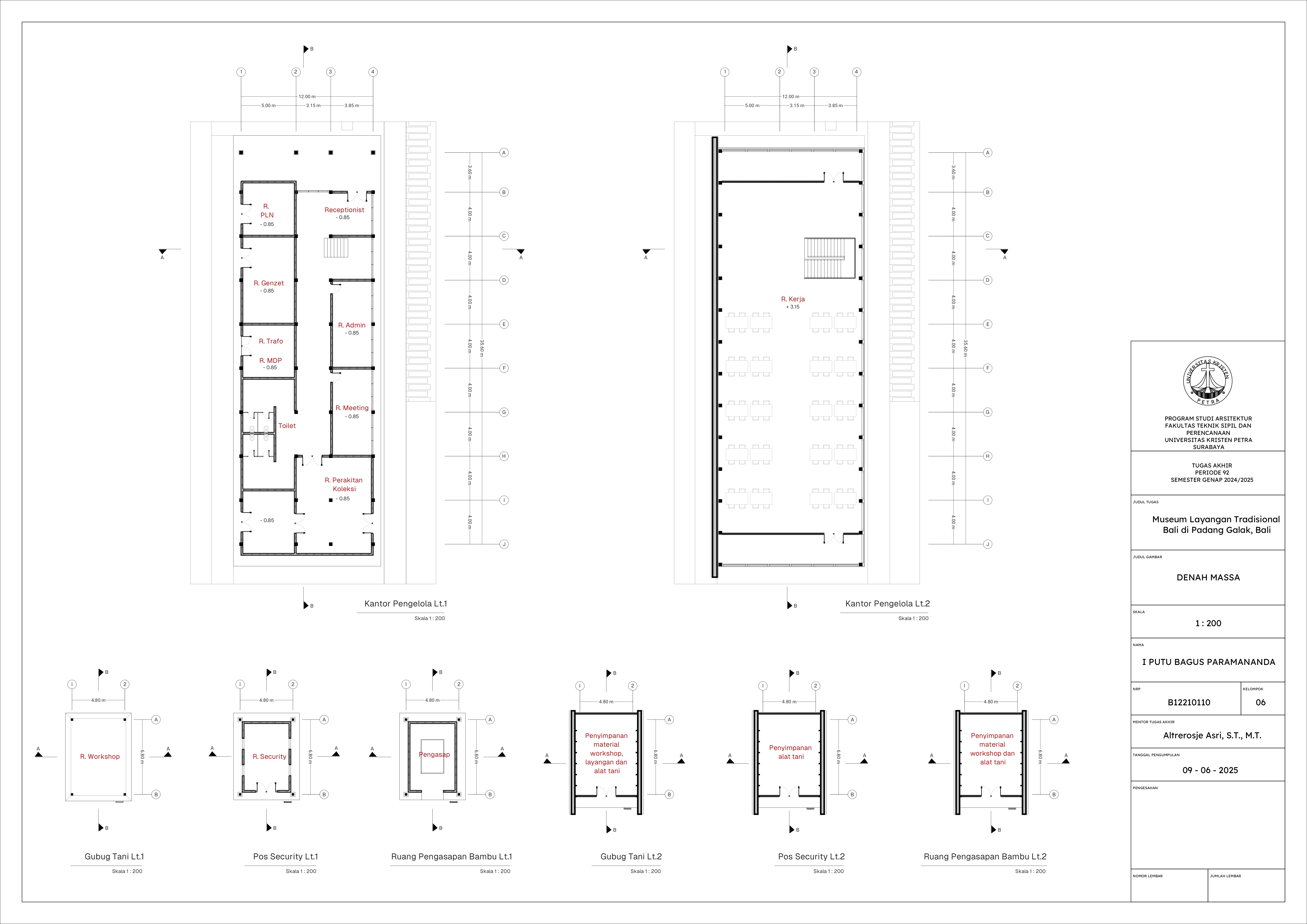
Museum Layangan Bali dirancang sebagai solusi terhadap tantangan utama yang dihadapi tradisi melayangan di Bali, sebuah tradisi yang kaya akan nilai historis, spiritual, dan sosial. Permasalahan yang dihadapi antara lain kurangnya edukasi dan pemahaman masyarakat, terutama generasi muda, tentang makna filosofi layangan sebagai simbol rasa syukur kepada Dewa Rare Angon, yang erat kaitannya dengan aktivitas panen. Selain itu, hingga saat ini, Bali belum memiliki ruang fisik yang secara khusus dapat mewadahi tradisi ini, baik sebagai artefak budaya maupun aktivitas budaya yang hidup. Untuk menjawab permasalahan ini, museum dirancang tidak hanya sebagai ruang pameran artefak, tetapi juga sebagai ruang interaktif yang menghidupkan tradisi melayangan melalui pendekatan Event Space Bernard Tschumi. Pendekatan ini menekankan prinsip "there is no space without event," di mana ruang hanya bermakna jika dihidupkan oleh aktivitas atau peristiwa di dalamnya. Pantai Padang Galak yang telah dikenal sebagai tempat penyelenggaraan Festival Layangan Bali sejak tahun 1978. Namun, festival yang hanya berlangsung pada bulan Juli hingga Oktober tidak cukup untuk menjaga keberlangsungan tradisi sepanjang tahun. Oleh karena itu, museum ini dirancang untuk tetap hidup melalui integrasi antara menghadirkan artefak layangan, kegiatan melayangan, keseharian masyarakat terutama bertani serta upacara adat Bali dengan menggunakan metode penggabungan cross, trans, dan dis-programming dari Bernard Tschumi. Pendekatan ini memungkinkan ruang untuk mendukung berbagai fungsi, menggabungkan program-program yang berbeda, dan menciptakan pengalaman ruang baru yang dinamis. Dengan demikian, Museum Layangan Bali diharapkan dapat menjadi pusat pelestarian budaya yang tidak hanya melestarikan tradisi, tetapi juga menghidupkannya, sekaligus menjembatani masyarakat dengan tradisi lokal yang kaya makna.

I PUTU BAGUS PARAMANANDA Altrerosje Asri, S.T., M.T. (Advisor 1); Wanda Widigdo Canadarma (Examination Committee 1); Bram Michael Wayne, S.T., M.Ars. (Examination Committee 2); Esti Asih Nurdiah, S.T., M.T., Ph.D. (Examination Committee 3); Dr. Ir. Agus Dwi Hariyanto, S.T., M.Sc. (Examination Committee 4); Anik Juniwati (Examination Committee 5); Timoticin Kwanda (Examination Committee 6) Universitas Kristen Petra Indonesian Digital Theses Undergraduate Thesis Laporan Perancangan Arsitektur Laporan Perancangan Arsitektur No. 00024684/ARS/2025; I Putu Bagus Paramananda (B12210110) MUSEUM BUILDINGS--DESIGNS AND PLANS; ART OBJECTS, BALINESE

Files