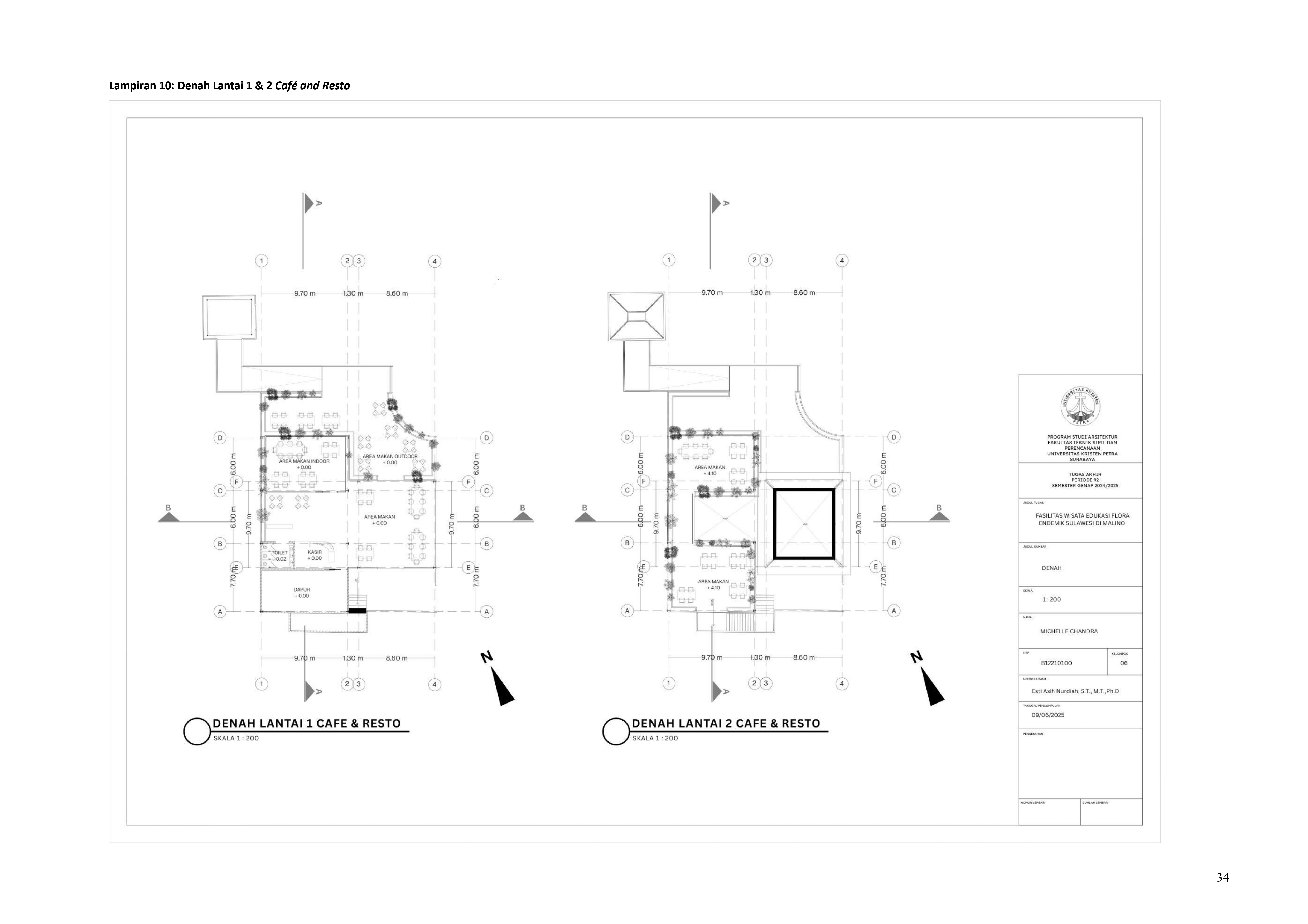
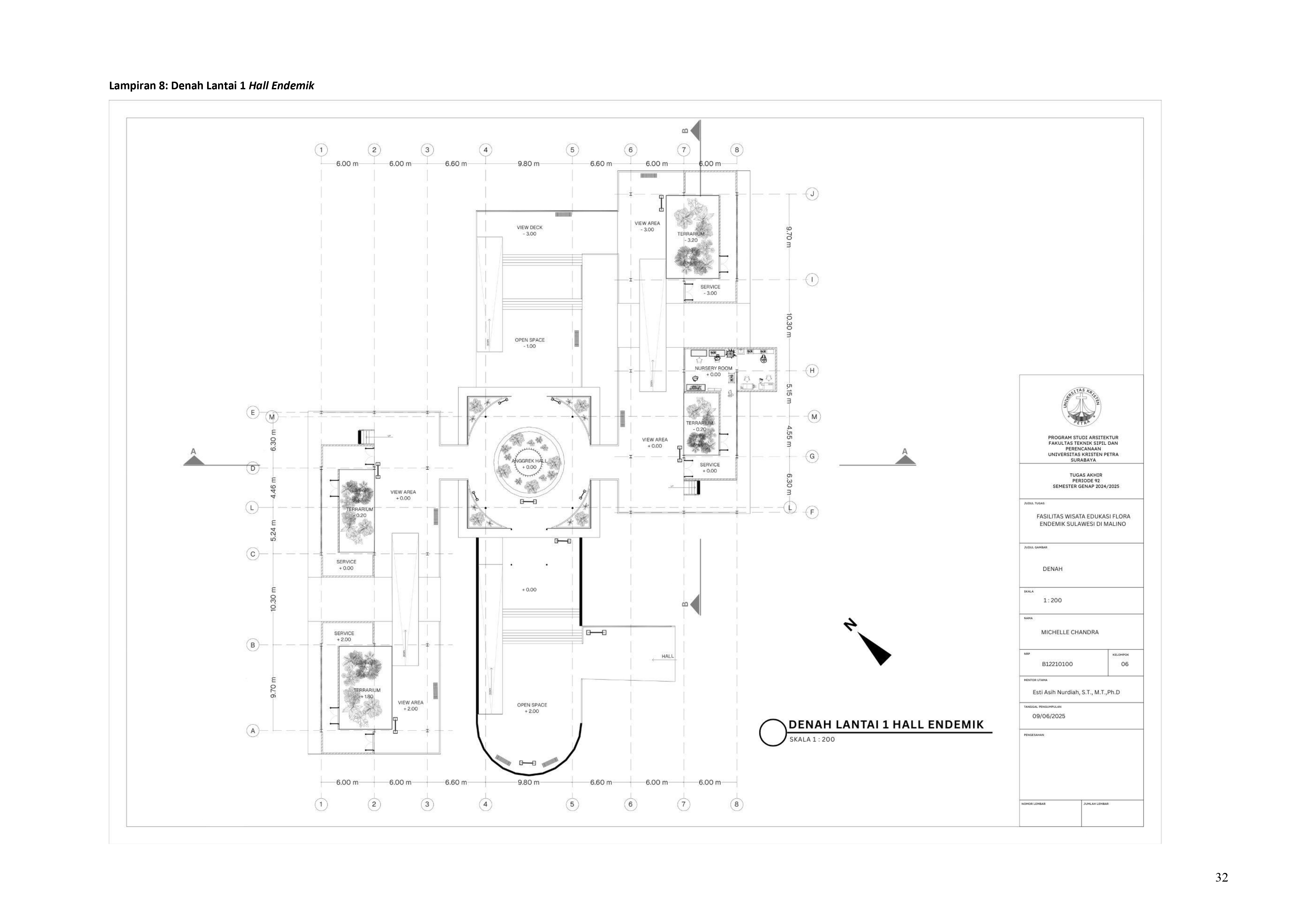
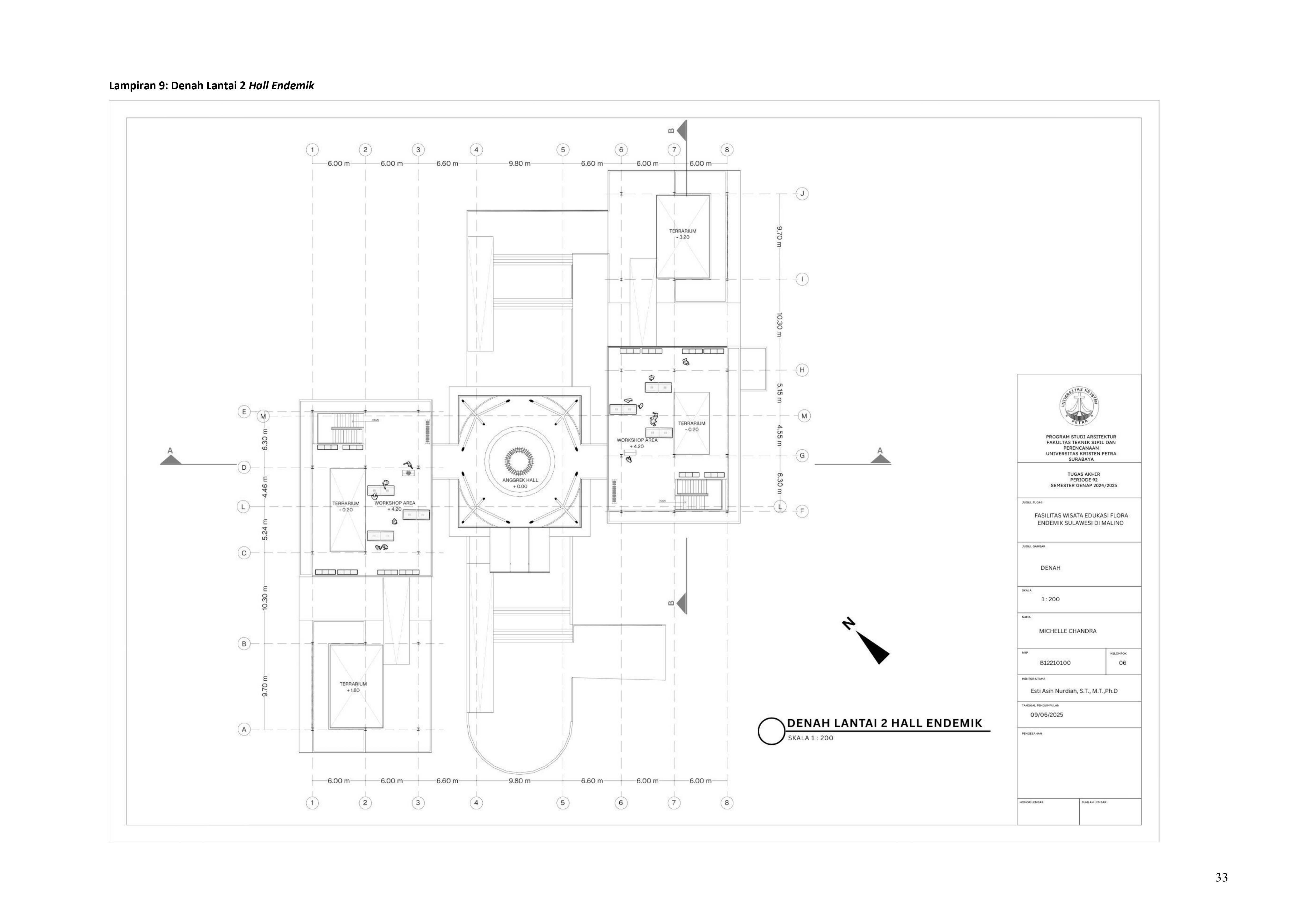
Fasilitas wisata edukasi flora endemik Sulawesi di Malino

Perkembangan fasilitas edukasi saat ini menuntut perancangan ruang yang tidak hanya berfungsi sebagai media pembelajaran, tetapi juga mampu menjadi penghubung langsung antara manusia dan alam. Perancangan Fasilitas Wisata Edukasi Flora Endemik Sulawesi di Malino dilatarbelakangi oleh menurunnya kesadaran masyarakat terhadap pentingnya pelestarian flora lokal, yang semakin terancam oleh aktivitas pariwisata yang tidak terkontrol dan degradasi lingkungan. Untuk menjawab tantangan ini, pendekatan constructed ecosystem diterapkan sebagai strategi utama dalam perancangan. Pendekatan ini bertujuan untuk menciptakan lingkungan buatan yang meniru dan merepresentasikan sistem kerja ekosistem alami, sehingga mampu menghadirkan pengalaman ekologis secara nyata dalam konteks ruang arsitektur. Melalui metode studi literatur, observasi lapangan, dan analisis tapak, desain dikembangkan ke dalam bentuk terarium besar, ruang interpretatif, jalur edukatif, serta zona konservasi semi-terbuka yang saling terhubung secara fungsional dan ekologis. Setiap elemen ruang dirancang tidak hanya untuk menampilkan keanekaragaman flora endemik Sulawesi, tetapi juga menciptakan sistem mikroklimat yang mendukung pertumbuhan tanaman dan kenyamanan pengunjung. Ruang-ruang ini saling terhubung dan memberi pengalaman langsung dengan ekosistem buatan, untuk menumbuhkan kesadaran akan pentingnya lingkungan. Proyek ini bertujuan menjadi contoh arsitektur edukatif yang peduli lingkungan, melibatkan masyarakat, dan berdampak langsung pada konservasi.

MICHELLE CHANDRA Esti Asih Nurdiah, S.T., M.T., Ph.D. (Advisor 1); Altrerosje Asri, S.T., M.T. (Examination Committee 1); Wanda Widigdo Canadarma (Examination Committee 2); Bram Michael Wayne, S.T., M.Ars. (Examination Committee 3); Dr. Ir. Agus Dwi Hariyanto, S.T., M.Sc. (Examination Committee 4) Universitas Kristen Petra English Digital Theses Undergraduate Thesis Laporan Perancangan Arsitektur Laporan Perancangan Arsitektur No. 00024682/ARS/2025; Michelle Chandra (B12210100) EDUCATION PARKS--DESIGNS AND PLANS; RECREATION CENTERS--DESIGNS AND PLANS; PLANT CONSERVATION

Files