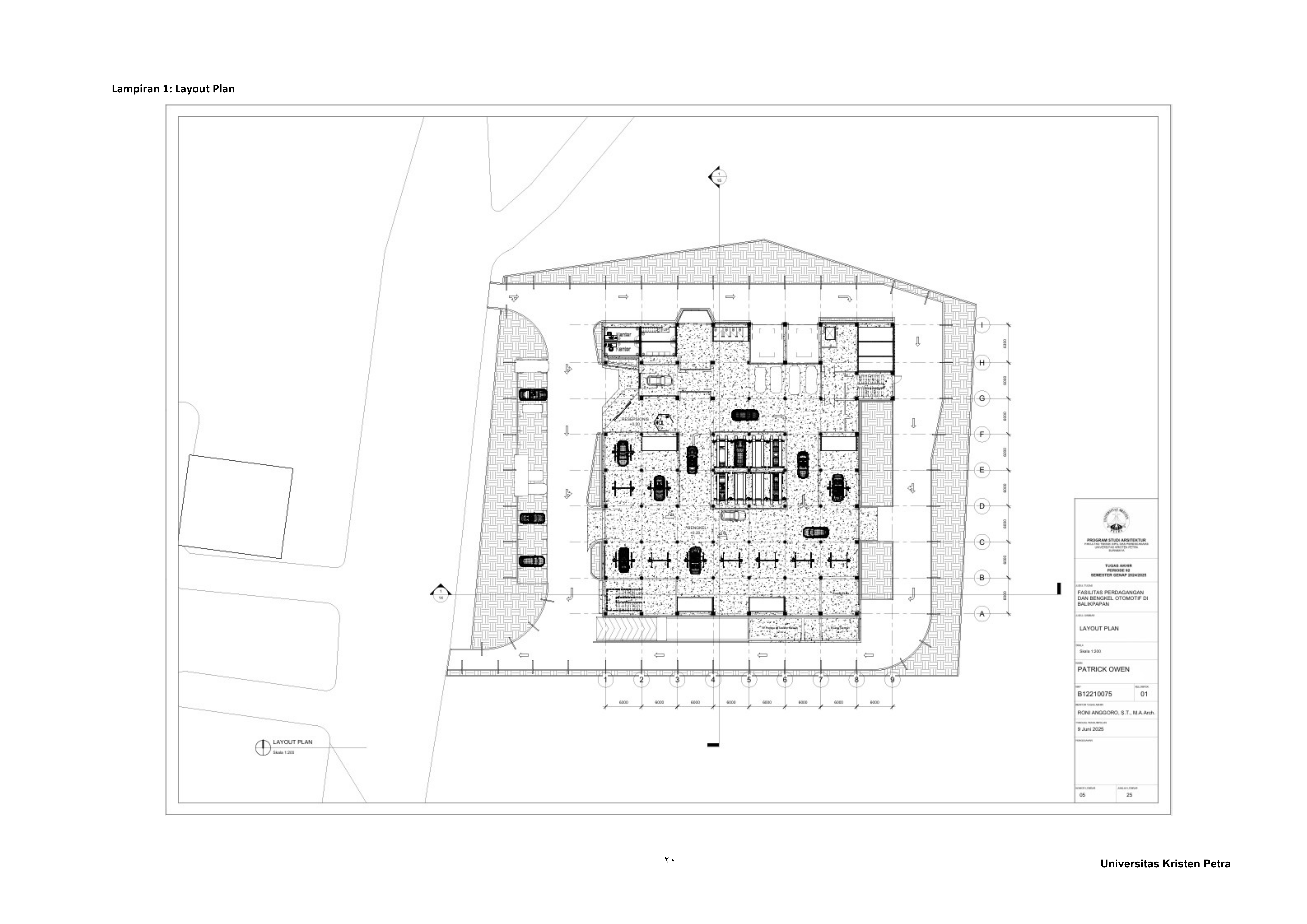
Fasilitas perdagangan dan bengkel otomotif di Balikpapan

Pertumbuhan jumlah kendaraan roda empat di Kota Balikpapan menunjukkan tren yang meningkat signifikan dalam lima tahun terakhir, dari 85.000 unit pada tahun 2018 menjadi sekitar 120.000 unit pada tahun 2023 menurut data BPS Kota Balikpapan (2024). Perkembangan ini didorong oleh posisi strategis Balikpapan sebagai gerbang utama menuju Ibu Kota Nusantara (IKN), serta pertumbuhan sektor industri dan ekonomi yang semakin masif. Sejalan dengan itu, kebutuhan akan fasilitas otomotif yang lengkap, representatif, dan fungsional pun menjadi semakin mendesak. Tugas Akhir ini merancang sebuah fasilitas perdagangan dan bengkel otomotif yang berlokasi di Kota Balikpapan dengan pendekatan modular serta perancangan sirkulasi kendaraan yang aman dan efisien. Bangunan dirancang untuk menampung kegiatan retail suku cadang, servis kendaraan, showroom, hingga area komunitas dalam satu kesatuan yang terintegrasi. Pendekatan modular digunakan untuk memudahkan penyusunan ruang serta memungkinkan fleksibilitas pengembangan di masa mendatang, sementara sistem sirkulasi diperhitungkan secara cermat agar menunjang kelancaran mobilitas kendaraan maupun pengguna dalam tapak dan bangunan.

PATRICK OWEN Roni Anggoro, S.T., M.A.Arch. (Advisor 1); Luciana Kristanto, S.T., M.T. (Examination Committee 1); Dr. Feny Elsiana, S.T., M.T. (Examination Committee 2); Lilianny Sigit Arifin (Examination Committee 3); Eunike Kristi Julistiono, S.T., M.Des.Sc., Ph.D. (Examination Committee 4); Ir. Stephanus Wirawan Dharmatanna, S.T., M.Ars. (Examination Committee 5) Universitas Kristen Petra Indonesian Digital Theses Undergraduate Thesis Laporan Perancangan Arsitektur Laporan Perancangan Arsitektur No. 00024669/ARS/2025; Patrick Owen (B12210075) MARKETPLACES--DESIGNS AND PLANS; AUTOMOBILE REPAIR SHOPS--DESIGNS AND PLANS; COMMERCIAL BUILDINGS

Files