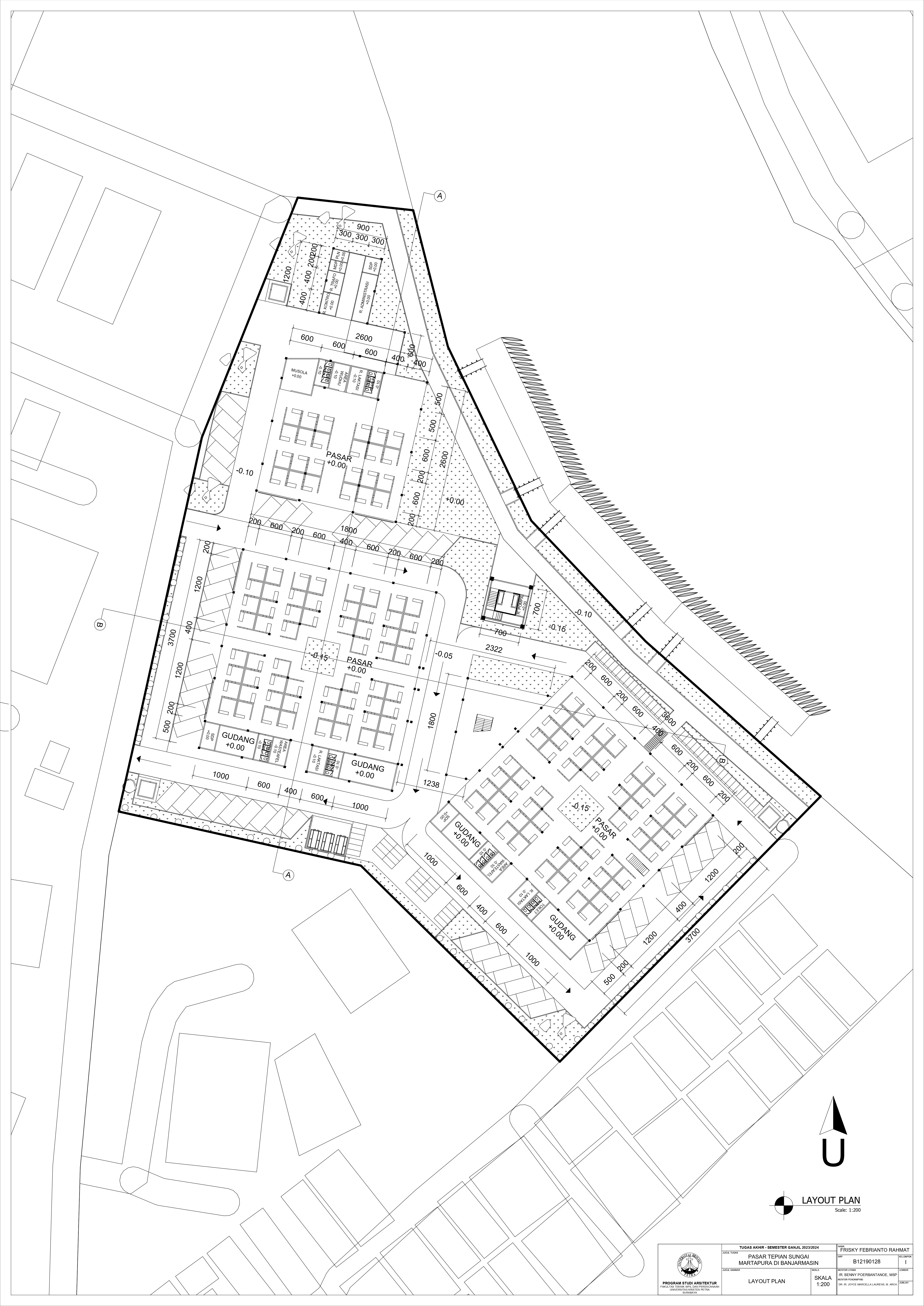
Pasar tepian sungai Martapura di Banjarmasin

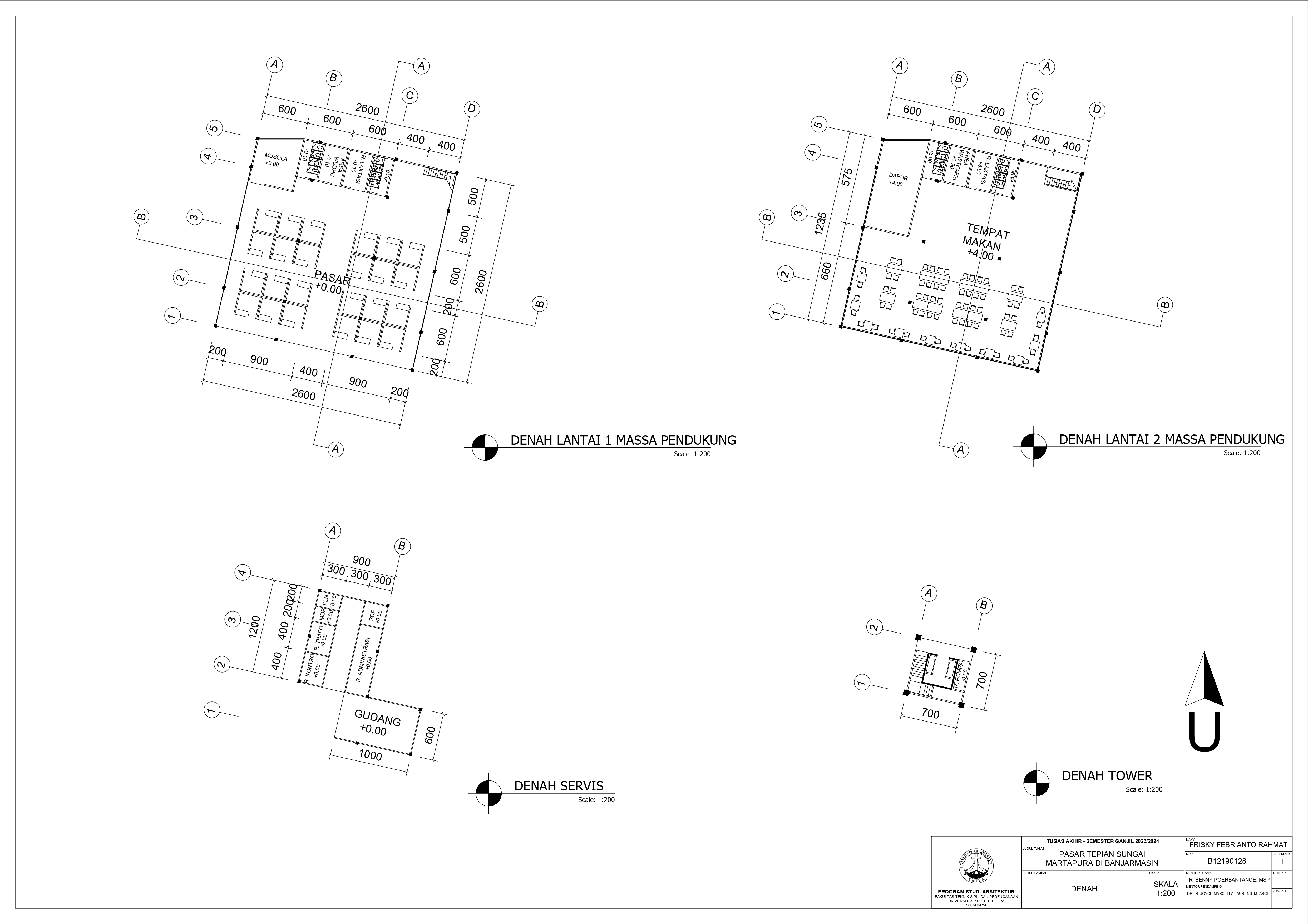
Pasar Tradisional di Banjarmasin saat ini ada 2 yaitu Pasar Tradisional di darat dan Pasar Terapung. Pasar Tradisional di darat saat ini masih kumuh, sempit, dan kurang tertata dengan baik dan juga Pasar Terapung saat ini masih kurang aman dan nyaman selain itu Pasar Terapung saat ini menjadi objek wisata di Banjarmasin. Maka dari itu Pasar Tepian Sungai Martapura ini dibutuhkan untuk menggabungkan Pasar Tradisional di darat dan Pasar Terapung agar menciptakan area Tepian Sungai yang menarik dan menjadi ikon di Banjarmasin. Untuk mendukung area Tepian Sungai ada juga fasilitas pendukung tempat makan untuk menikmati tepian Sungai dan Tower Air dengan ketinggian 21-meter yang memungkinkan diakses pengunjung untuk dapat menikmati view Sungai dari atas tower air. Pasar Tradisional yang ada di zoning secara vertical dari yang basah di lantai 1 dan kering di lantai 2, bentuk bangunan menyesuaikan modul dari kios yang tersusun berpola.

FRISKY FEBRIANTO RAHMAT Ir. Benny Poerbantanoe, MSP. (Advisor 1); Joyce M.Laurens (Advisor 2); Roni Anggoro, S.T., M.A.Arch. (Examination Committee 1); Ir. Samuel Hartono, M.Sc. (Examination Committee 2) Universitas Kristen Petra Indonesian Digital Theses Undergraduate Thesis Laporan Perancangan Arsitektur Laporan Perancangan Arsitektur No. 02024518/ARS/2023; Frisky Febrianto Rahmat (B12190128) COMMERCIAL BUILDINGS-DESIGN AND PLANS; MARKETS-DESIGN AND PLANS

Files