Pabrik packaging kertas di Menganti, Gresik

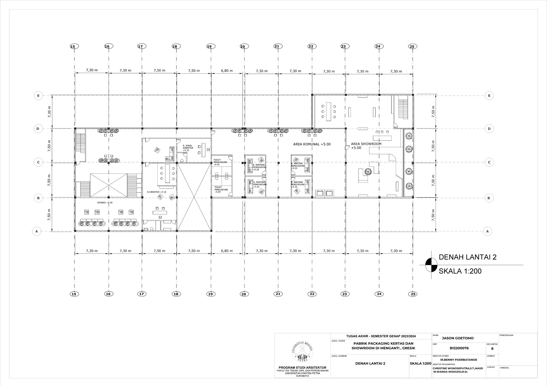
Kerumitan proses pembuatan packaging kertas dan pengenalan akan packaging kertas menjadi alasan akan bangunan Pabrik Packaging Kertas dan Showroom ini didesain. Berlokasi di Menganti Gresik sebagai area industri dan perdagangan barang dan jasa. Pabrik packaging kertas dan showroom ditata berdasarkan pendekatan sirkulasi dari para pengguna. Bangunan ini terbagi menjadi 3 area (area showroom, area kantor dan area industri). Area industri diselesaikan dengan pendekatan sirkulasi pengolahan kertas hingga menjadi satu sistem packaging kertas yang urut.

JASON GOETOMO Ir. Benny Poerbantanoe, MSP. (Advisor 1); Wanda Widigdo Canadarma (Advisor 2); Christine Wonoseputro (Advisor 3); Dr. Ir. Agus Dwi Hariyanto, S.T., M.Sc. (Examination Committee 1); Joyce M.Laurens (Examination Committee 2); Ir. Markus Ignatio Aditjipto, M.Arch. (Examination Committee 3); Ir. Stephanus Wirawan Dharmatanna, S.T., M.Ars. (Examination Committee 4) Universitas Kristen Petra Indonesian Digital Theses Undergraduate Thesis Laporan Perancangan Arsitektur Laporan Perancangan Arsitektur No. 00024572/ARS/2024; Jason Goetomo (B12200076) INDUSTRIAL BUILDINGS--DESIGNS AND PLANS; FACTORIES

Files