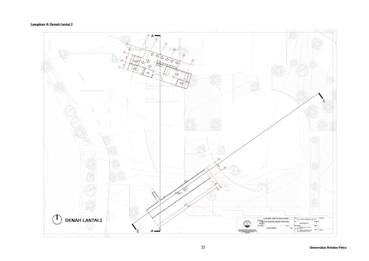
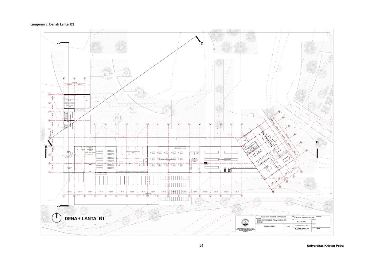
Fasilitas edukasi wisata Arak Bali di Bali

Desa Bongkasa merupakan sebuah desa wisata yang memiliki banyak tempat wisata dan salah satunya adalah wisata arak yang dulunya ada, namun sekarang telah mati ditinggalkan karena pandemi covid 19 dan juga reputasi arak Bali yang cenderung ke arah negatif. Dengan matinya wisata arak Bali ini memberi dampak buruk bagi masyarakat pengrajin arak dan wisata sekitar. Dengan adanya fasilitas wisata edukasi ini bertujuan untuk membumikan/mempromosikan minuman tradisional Bali, serta menyediakan sarana bagi masyarakat Indonesia dan Turis untuk mengenal lebih tentang tradisi pembuatan arak Bali, dengan sebuah edukasi yang interaktif dalam penyampaian multisensori yang merangsang indra pengunjung. Agar pengunjung dapat menemukan fungsi arak sebenarnya pada kehidupan masyarakat Hindu Bali. Hasil dari desain untuk menampung pengrajin arak sebagai koperasi arak di Desa Bongkasa, serta membuka pandangan masyarakat atau wisatawan tentang betapa indahnya arak Bali yang sangat melekat dalam kehidupan masyarakat Hindu Bali.

PUTU GEDE ISWARADA IDEP PRAMANA RUSDYANA Altrerosje Asri, S.T., M.T. (Advisor 1); Ir. Samuel Hartono, M.Sc. (Advisor 2); Elvina Shanggrama Wijaya, S.T., M.T. (Advisor 3); Lilianny Sigit Arifin (Examination Committee 1); Anik Juniwati (Examination Committee 2); Ir. Stanislaus Kuntjoro Santoso, M.T. (Examination Committee 3); Esti Asih Nurdiah, S.T., M.T., Ph.D. (Examination Committee 4) Universitas Kristen Petra Indonesian Digital Theses Undergraduate Thesis Laporan Perancangan Arsitektur Laporan Perancangan Arsitektur No. 01024597/ARS/2024; Putu Gede Iswarada Idep Pramana Rusdyana (B12200110) EDUCATION PARKS--DESIGNS AND PLANS; RECREATION CENTERS--DESIGNS AND PLANS

Files