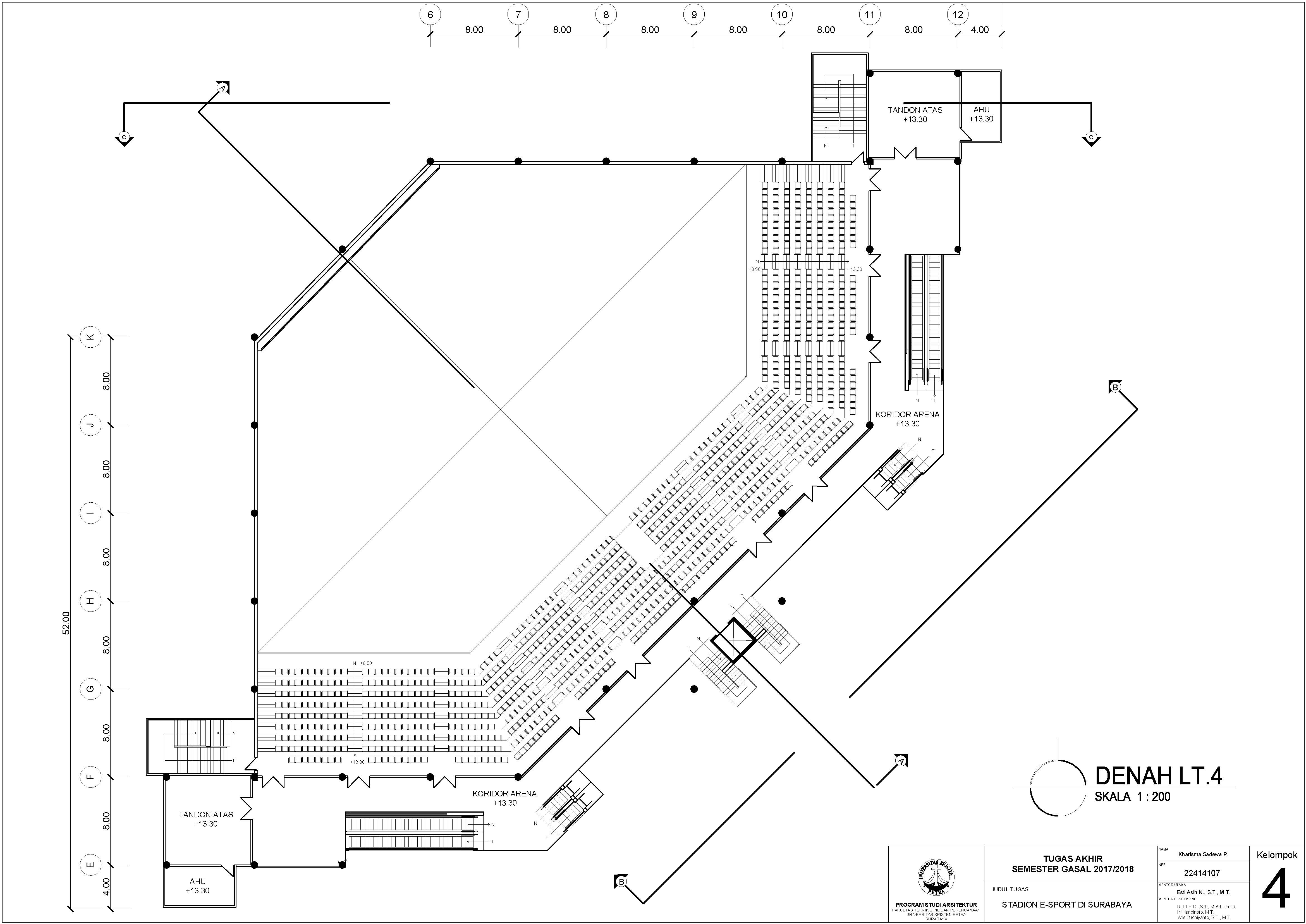
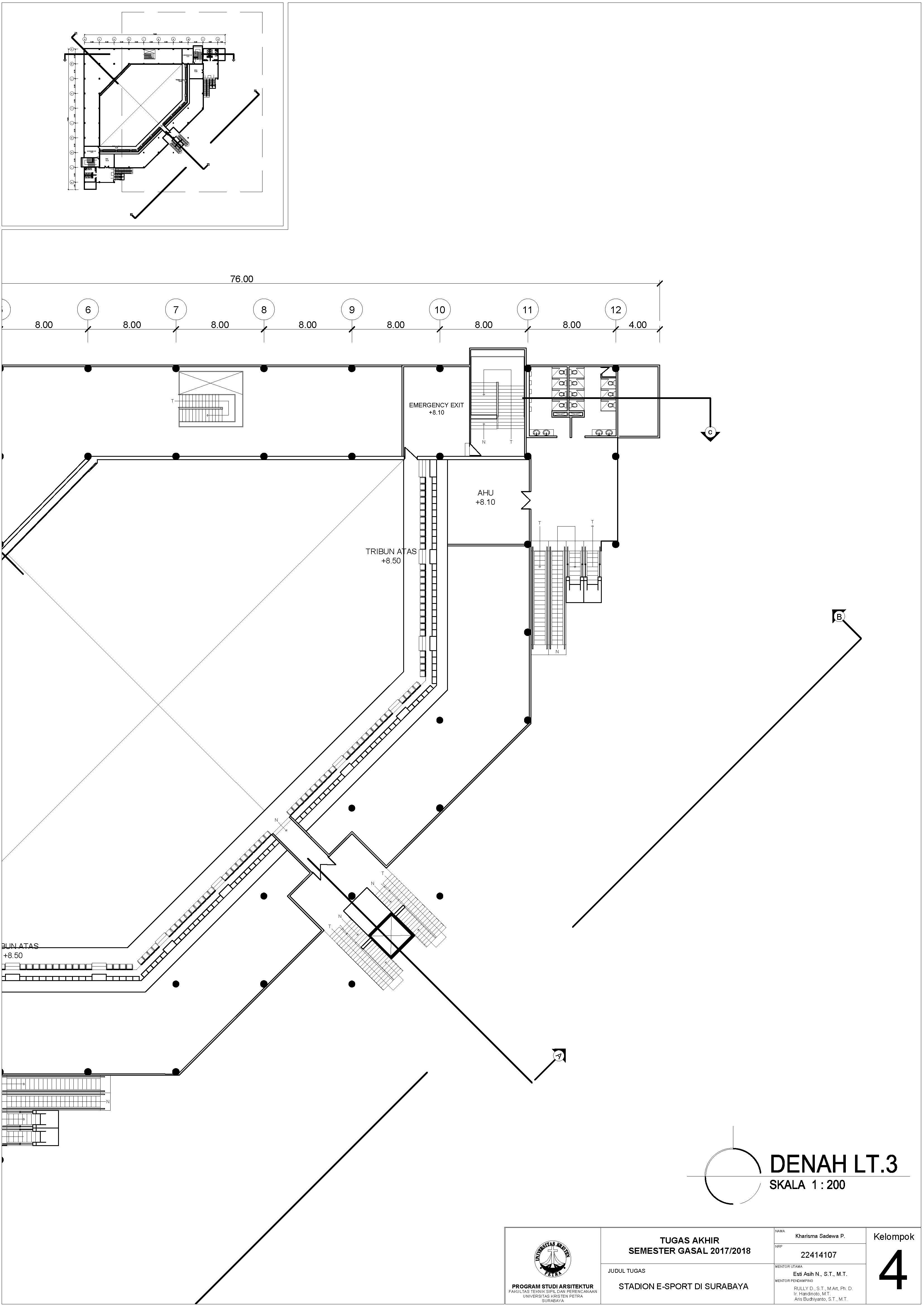
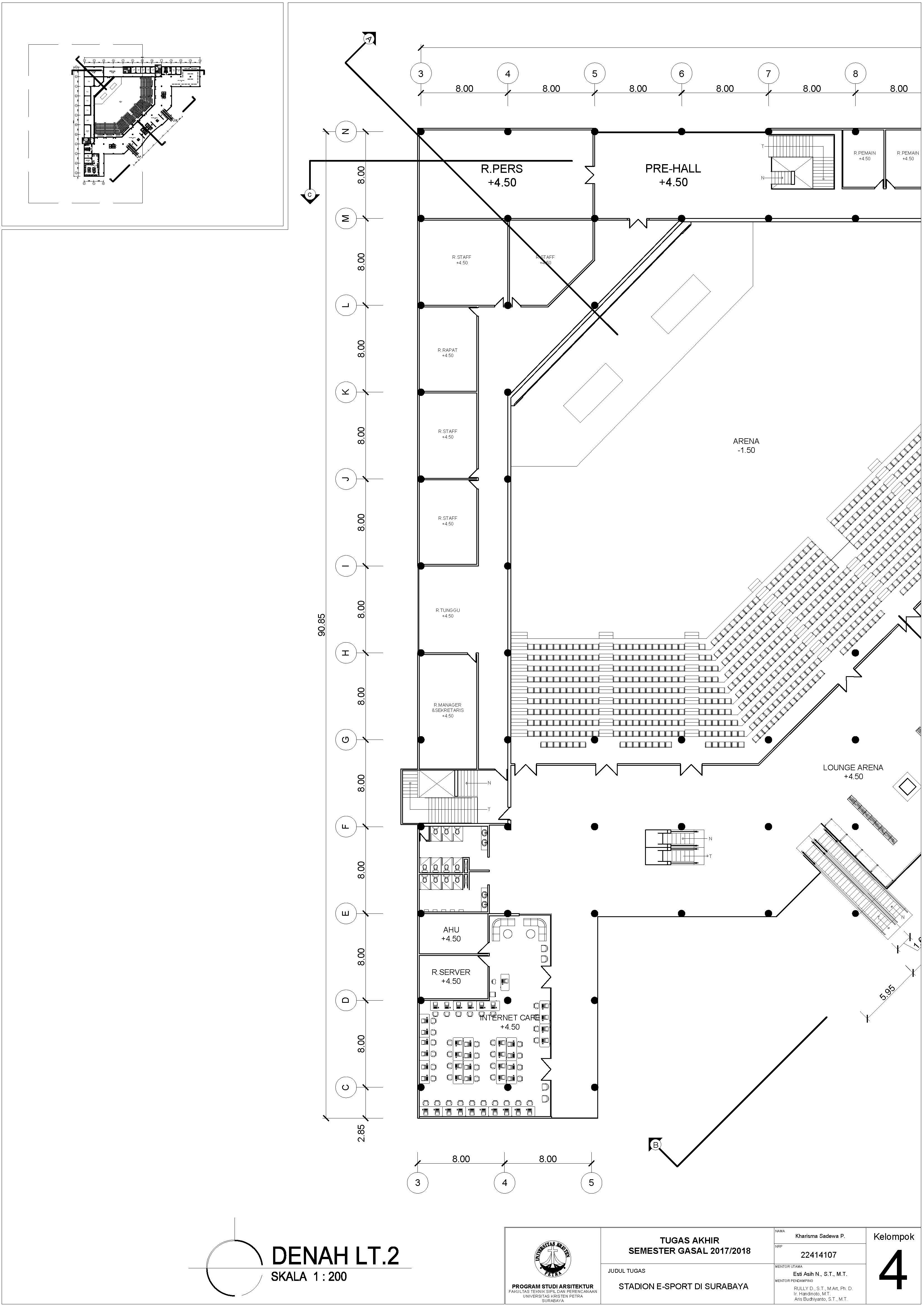
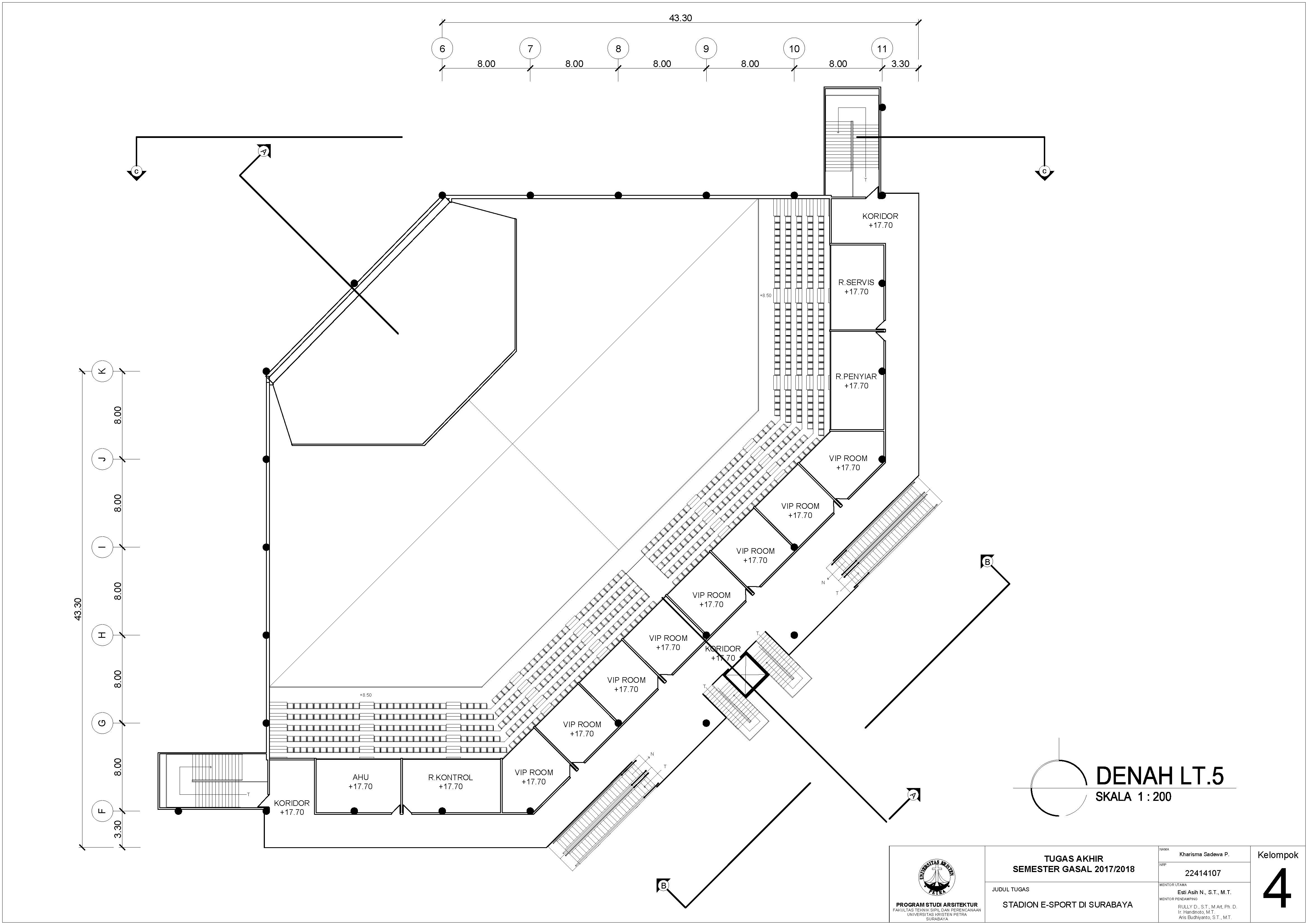
Stadion e-sports di Surabaya

Olahraga elektronik (e-sport) menjadi olahraga kompetitif yang populer sebagai dampak dari evolusi industri game online global. Saat ini, komunitas game online juga mengadakan turnamen dan kontes e-sport yang disponsori oleh perusahaan-perusahaan perangkat game besar. Namun, fasilitas atau tempat untuk menyelenggarakan turnamen yang layak tidak tersedia di Surabaya. Oleh karena itu, tugas akhir ini merancang sebuah stadion yang didedikasikan untuk kegiatan e-sports yang mampu menyelenggarakan turnamen berskala internasional dengan kapasitas 900 kursi penonton, juga dilengkapi dengan fasilitas pendukung seperti food court, internet café untuk bermain game, dan toko perangkat gaming. Roshan, sebagai salah satu karakter dalam permainan DoTA 2, digunakan sebagai signified untuk merancang bentuk dan pelingkup bangunan. Dengan demikian, bangunan ini dirancang untuk memiliki bentuk ikonik yang berasal dari simbolisasi bentukan Roshan. Untuk mengoptimalkan bentuk pelingkup bangunan, proses desain perlu memperhatikan sistem struktur. Oleh karena itu, struktur dirancang menggunakan sistem space truss dan menggunakan pipa baja yang dibuat menyerupai cabang pohon untuk menambah suasana dramatis dalam ruangan.

KHARISMA SADEWA PRASETIO Esti Asih Nurdiah, S.T., M.T., Ph.D. (Advisor 1); Rully Damayanti (Advisor 2); Ir. Handinoto, M.T. (Advisor 3); Aris Budhiyanto (Advisor 4) Universitas Kristen Petra Indonesian Digital Theses Undergraduate Thesis Laporan Perancangan Arsitektur Laporan Perancangan Arsitektur No. 030/23816/ARS /2018; Kharisma Sadewa Prasetio (22414107) SPORTS FACILITIES--DESIGNS AND PLANS; ESPORTS (CONTESTS)

Files