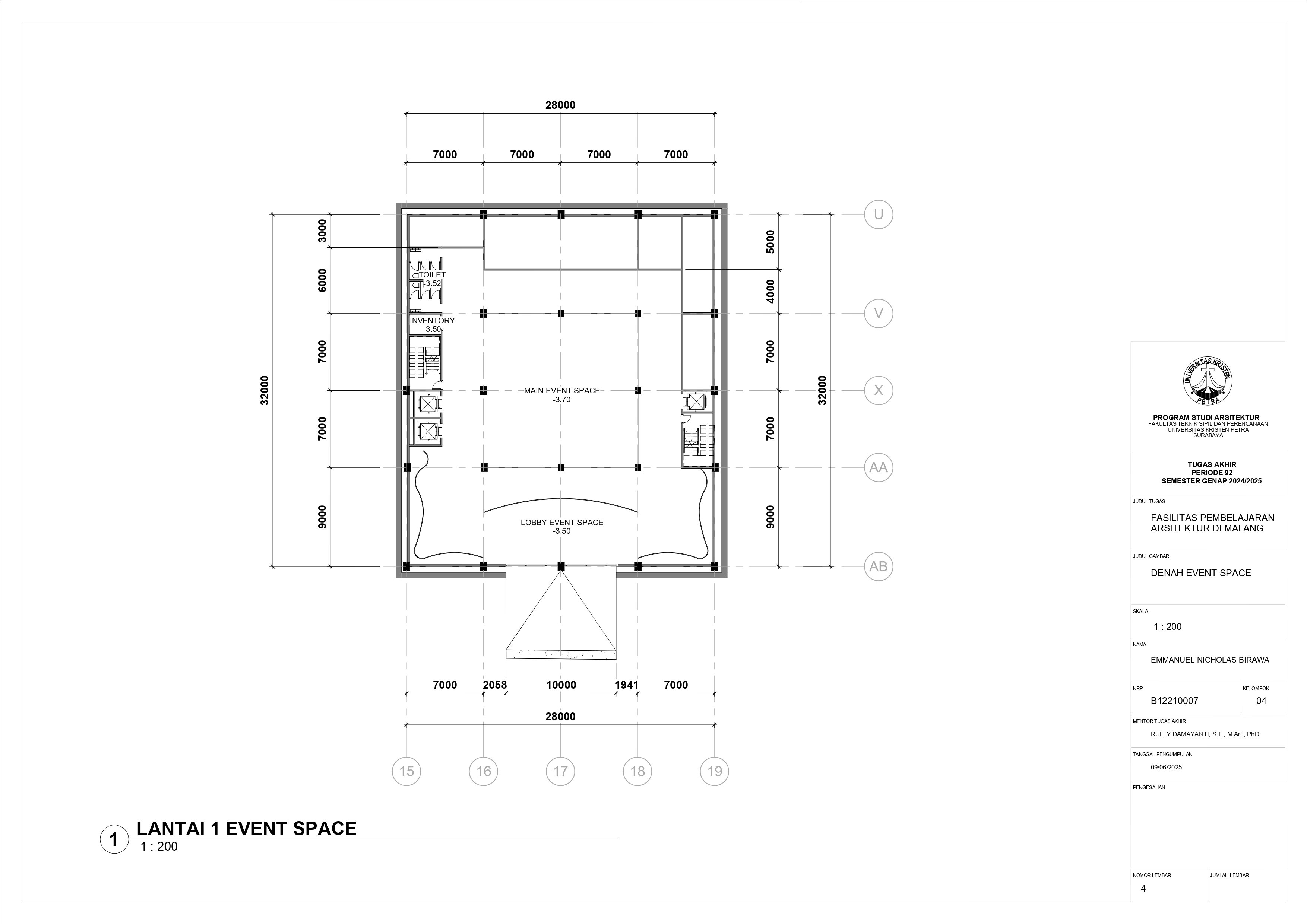
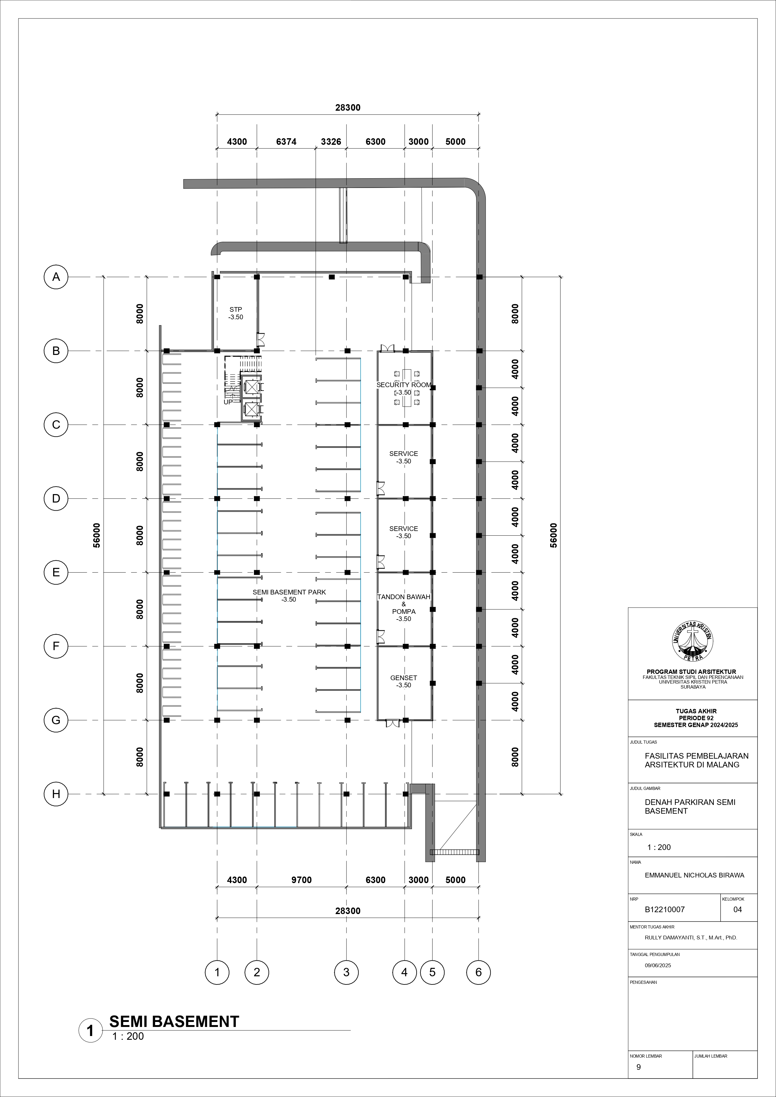
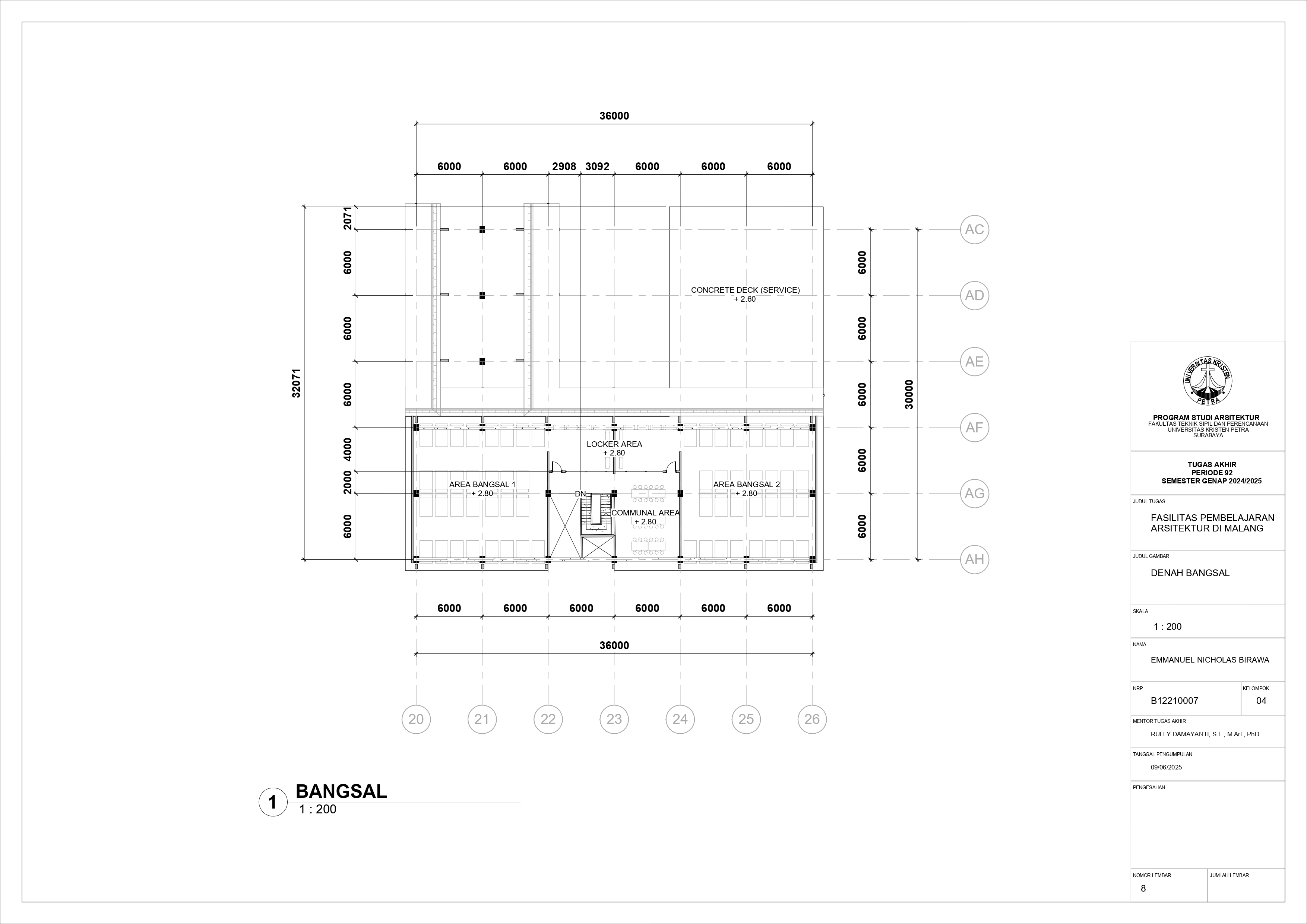
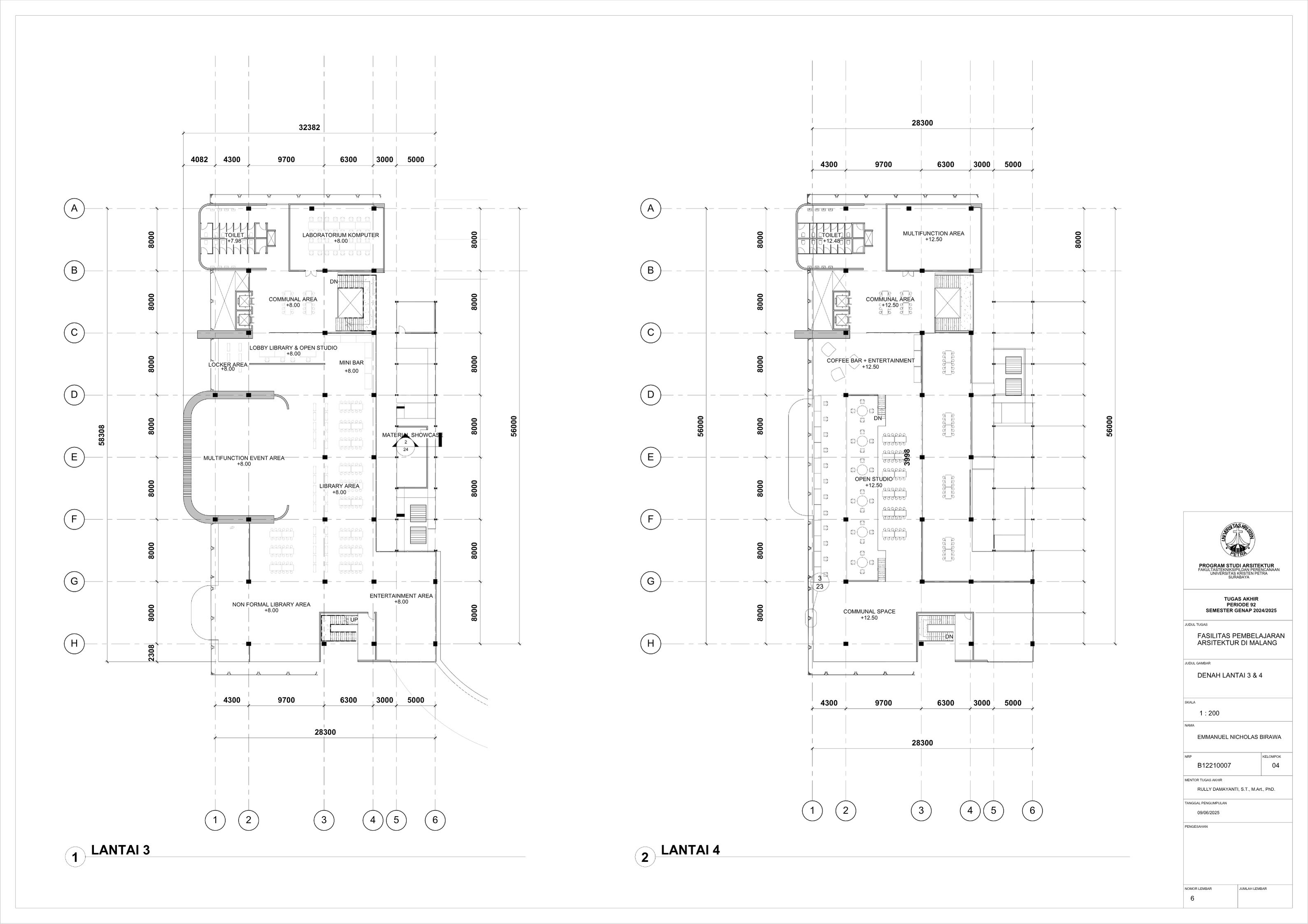
Fasilitas pembelajaran arsitektur di Malang

Pendidikan arsitektur belum sepenuhnya dapat menjawab tantangan dunia kerja karena ketidaksesuaian antara yang dipelajari mahasiswa saat studi dan realitas di lapangan, serta terbatasnya kesempatan pengembangan keterampilan secara mendalam selama perkuliahan. Pembelajaran yang menggunakan metode interaksi dan pemahaman langsung diharapkan dapat memberi gambaran mengenai persepsi mahasiswa arsitektur terhadap prospek dan masa depan profesi arsitek. Perancangan Tugas Akhir ini bertujuan merancang fasilitas pembelajaran yang memberikan pengetahuan dan pengalaman yang lebih mendalam dibandingkan pembelajaran konvensional. Desain berlandaskan konsep Building as a Learning Model, dimana bangunan difungsikan sebagai alat pembelajaran yang progresif. Penggunaan metode pendekatan multisensori juga membantu merangsang memori pengunjung terhadap pembelajaran yang disampaikan. Fasilitas ini terdiri atas fasilitas edukasi dan workshop dengan fokus menghadirkan integrasi antara teori dan dunia nyata, seperti workshop dan material. Proyek fasilitas pembelajaran ini diharapkan dapat meningkatkan kualitas pembelajaran dunia arsitektur untuk menghasilkan lulusan arsitektur yang berkualitas.

EMMANUEL NICHOLAS BIRAWA Rully Damayanti (Advisor 1); Bramasta Putra Redyantanu (Examination Committee 1); Danny Santoso Mintorogo (Examination Committee 2); Altrerosje Asri, S.T., M.T. (Examination Committee 3); Bram Michael Wayne, S.T., M.Ars. (Examination Committee 4); Esti Asih Nurdiah, S.T., M.T., Ph.D. (Examination Committee 5); Wanda Widigdo Canadarma (Examination Committee 6) Universitas Kristen Petra Indonesian Digital Theses Undergraduate Thesis Laporan Perancangan Arsitektur Laporan Perancangan Arsitektur No. 00024642/ARS/2025; Emmanuel Nicholas Birawa (B12210007) EDUCATION CENTERS--DESIGNS AND PLANS

Files