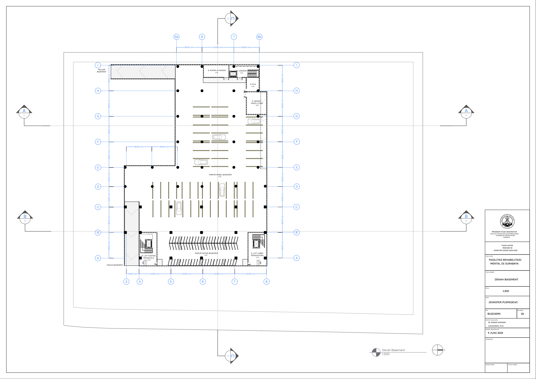
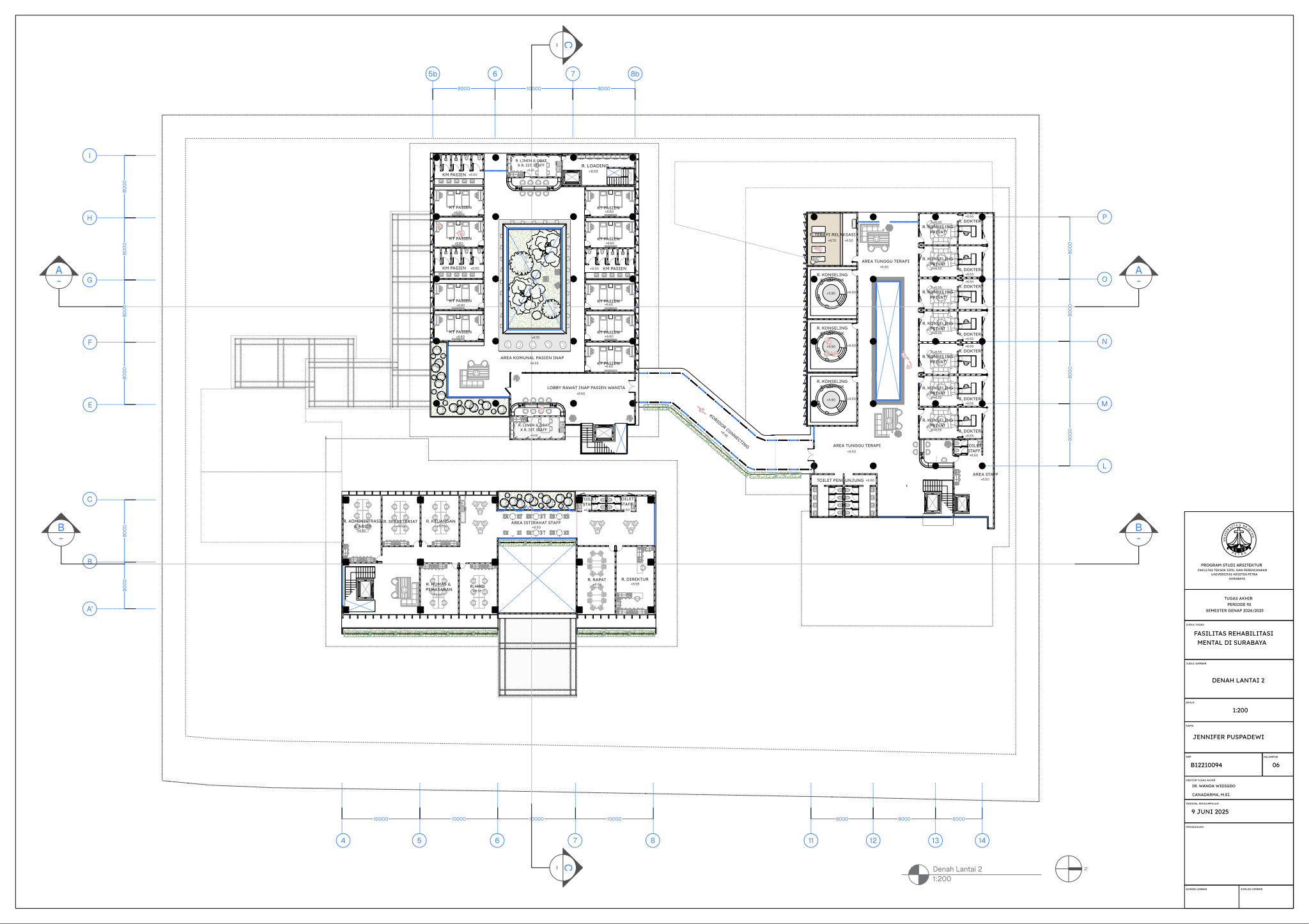
Fasilitas rehabilitasi mental di Surabaya

Masyarakat Indonesia yang mengidap gangguan mental mencapai angka 1 dari 5 orang pada tahun 2021 (Dr. C. E. Munthe, 2021) dengan jumlah pasien skizofrenia menduduki peringkat nomor satu di dunia (MetroTV, 2024). Dengan demikian, fasilitas kesehatan mental merupakan kebutuhan yang krusial di Negara Indonesia saat ini di mana tingkat masyarakat dengan gangguan mental tidak sepadan dengan minimnya Fasilitas Kesehatan Mental yang memadai. Karena itu, Tugas Akhir Karya Desain ini bertujuan untuk menciptakan desain Fasilitas Rehabilitasi Mental yang peduli terhadap penggunanya serta menghilangkan stigma negatif masyarakat seputar fasilitas kesehatan mental. Dalam menstudi desain yang paling efektif bagi Fasilitas Rehabilitasi Mental, dilakukan pengumpulan data dengan metode kualitatif dari berbagai literatur profesional serta studi kasus fasilitas serupa yang menerapkan prinsip Healing Architecture. Hasil dari Tugas Akhir ini adalah sebuah desain arsitektur Fasilitas Rehabilitasi Mental dengan fasilitas rawat jalan dan rawat inap yang sesuai dengan standar internasional dan mengimplementasikan elemen-elemen healing di seluruh fasilitas.

JENNIFER PUSPADEWI Wanda Widigdo Canadarma (Advisor 1); Altrerosje Asri, S.T., M.T. (Examination Committee 1); Esti Asih Nurdiah, S.T., M.T., Ph.D. (Examination Committee 2); Bram Michael Wayne, S.T., M.Ars. (Examination Committee 3); Timoticin Kwanda (Examination Committee 4); Anik Juniwati (Examination Committee 5); Dr. Ir. Agus Dwi Hariyanto, S.T., M.Sc. (Examination Committee 6) Universitas Kristen Petra Indonesian Digital Theses Undergraduate Thesis Laporan Perancangan Arsitektur Laporan Perancangan Arsitektur No. 00024679/ARS/2022; Jennifer Puspadewi (B12210094) MENTAL HEALTH FACILITIES; MENTAL HEALTH SERVICES--DESIGNS AND PLANS; PSYCHIATRIC HOSPITALS--PLANNING

Files