Hotel bintang 3 di kota Batu

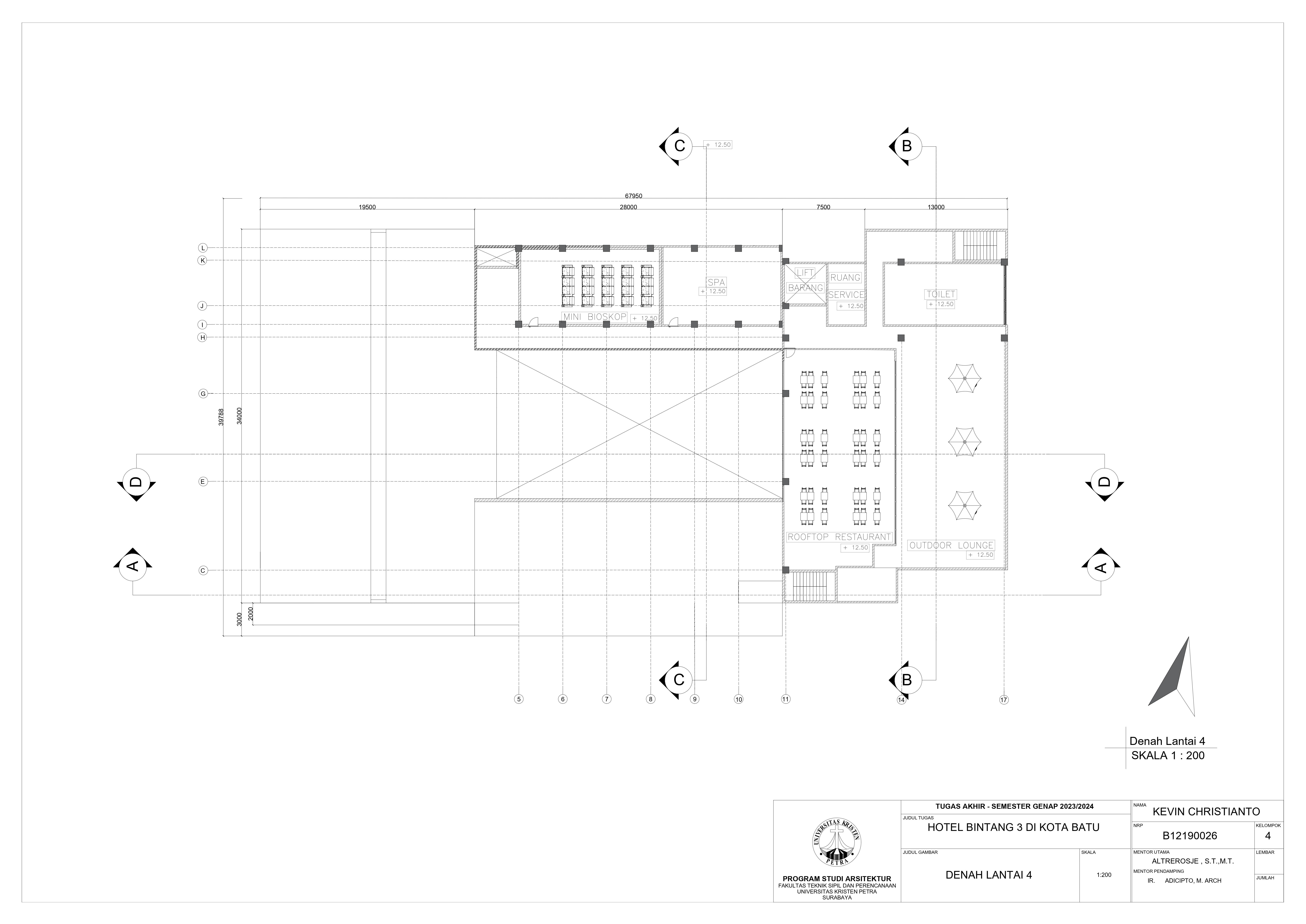
Kota Batu merupakan kota wisata yang ada di daerah pegunungnan dan karena memiliki banyaknya tempat wisata alami dan buatan . Kapasitas hotel di Kota Batu cenderung lebih sedikit daripada kapasitas tempat wisatanya, juga maraknya staycation yang membuat wisatawan staycation membutuhkan hotel untuk berlibur. Metode yang digunakan yaitu dengan merencanakan acara untuk mengisi kegiatan bagi pelaku staycation dan menyediakan ruangan indoor maupun outdoor yang diperlukan. Hasil yang diperoleh yaitu adanya ruang boardgame, ruang meeting atau ruang serbaguna, ruang outdoor di sebelah kolam renang, mini bioskop, outdoor lounge, dan ruang spa. Acara-acara yang diadakan hotel diselenggarakan di ruang serbaguna dan juga ruang outdoor. Ruang boardgame, mini bioskop, dan ruang spa merupakan fasilitas tambahan yang sebenarnya tidak wajib ada pada hotel bintang 3. Outdoor lounge dibuat sebagai fasilitas dengan memperhatikan pemandangan alam yang ada di sekitar site.

KEVIN CHRISTIANTO Altrerosje Asri, S.T., M.T. (Advisor 1); Ir. Markus Ignatio Aditjipto, M.Arch. (Advisor 2); Dr. Ir. Joyce Marcella Laurens, M.Arch. (Examination Committee 1); Ir. Benny Poerbantanoe, MSP. (Examination Committee 2) Universitas Kristen Petra Indonesian Digital Theses Undergraduate Thesis Laporan Perancangan Arsitektur Laporan Perancangan Arsitektur No. 01024511/ARS/2023; Kevin Christianto (B12190026) ARCHITECTURE DESIGN; HOTELS--DESIGNS AND PLANS

Files