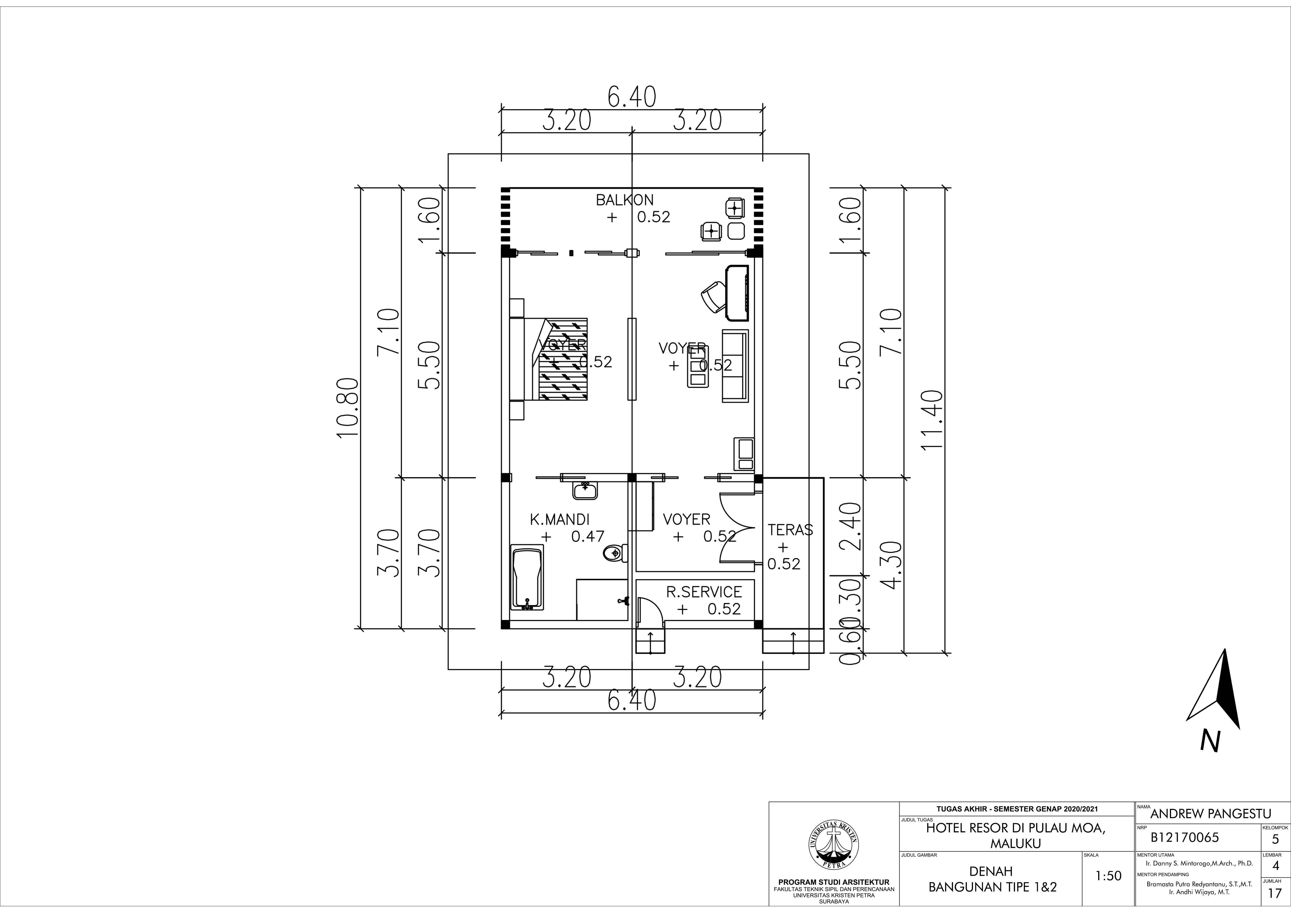
Hotel resor di Pulau Moa, Maluku

Latar belakang perancangan hotel resor di Pulau Moa, Maluku adalah keprihatinan sarana akomodasi penginapan di Pulau Moa yang sangat minim tetapi memiliki wisata alam yang sangat bagus. Dimana hotel resor ini memiliki sasaran wisatawan lokal menengah keatas dan wisatawan asing. Perancangan hotel resor ini ditujukan untuk menjadikan destinasi wisata eksklusif, wadah lapangan kerja, memperkenalkan dan mengedukasi tentang budaya setempat melalui arsitektur dan fasilitas pendukung energi yang ada di hotel resor di Pulau Moa. Energi menjadi aspek utama pada perancangan ini. Energi dirancang agar dapat mengintegrasikan lingkungan sekitar Pulau Moa dengan kebutuhan hotel resor sekaligus desain yang dapat mengelola dan menggunakan energi yang lebih efektif. Pengelolahan energi dari panel surya pada setiap atap bangunan yang dirancang dapat menciptakan energi listrik yang dapat membantu dalam kebutuhan listrik pada hotel resor di Pulau Moa tersebut.

ANDREW PANGESTU Danny Santoso Mintorogo (Advisor 1); Bramasta Putra Redyantanu (Advisor 2); Ir. Andhi Wijaya, M.T. (Advisor 3); Rully Damayanti (Examination Committee 1); Irwan Santoso (Examination Committee 2); Ir. Samuel Hartono, M.Sc. (Examination Committee 3); Angela Christysonia Tampubolon, S.T., M.T. (Examination Committee 4) Universitas Kristen Petra Indonesian Digital Theses Undergraduate Thesis Laporan Perancangan Arsitektur Laporan Perancangan Arsitektur No. 09024216/ARS/2021; Andrew Pangestu (B12170065) HOTELS--DESIGNS AND PLANS; RESORT ARCHITECTURE

Files