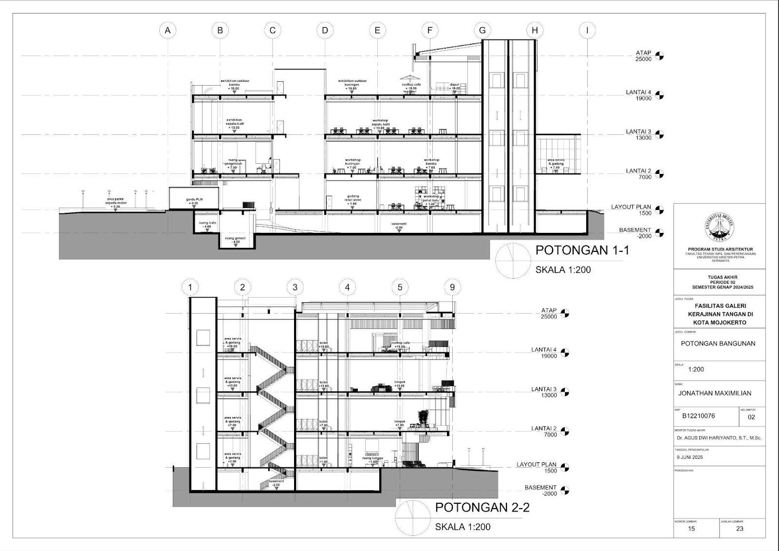
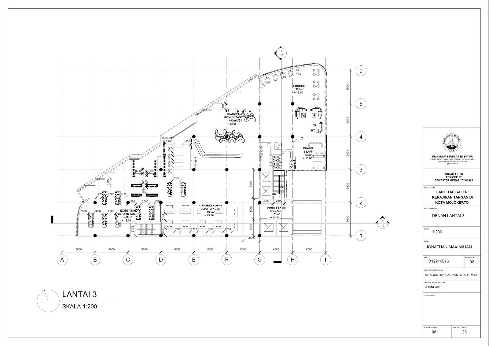
Fasilitas galeri kerajinan tangan di Kota Mojokerto

Mojokerto memiliki potensi besar dalam kerajinan lokal, seperti kerajinan kulit, bambu, batu, dan kuningan, yang berkontribusi terhadap PDRB sektor industri pengolahan sebesar 57,17% pada 2023. Upaya pemerintah sejak 2018, melalui pengembangan industri berbasis UMKM unggulan, bertujuan melestarikan budaya lokal sekaligus meningkatkan ekonomi daerah. Kerajinan Lokal yang saat ini berkembang menjadi kerajinan modern semakin diminati, baik sebagai hobi maupun peluang bisnis, yang berkontribusi terhadap perekonomian dengan pangsa pasar kerajinan global sebesar 1,25%. Untuk mendukung perkembangan ini, diperlukan fasilitas workshop yang nyaman dan sesuai dengan kebutuhan ruang kerajinan, serta galeri untuk memamerkan dan menjual hasil karya. Perancangan Fasilitas Galeri kerajinan Tangan di Mojokerto ini ditujukan untuk mendukung pengembangan budaya lokal dan kebutuhan pengrajin dengan pendekatan spasial yang fleksibel. Bangunan galeri dengan konsep CraftScape diusulkan sebagai wadah pameran, pemasaran, dan apresiasi kerajinan khas Mojokerto, sehingga mampu memberikan pengalaman menarik kepada pengguna sambil mendukung keberlanjutan budaya tradisional dan ekonomi kreatif daerah.

JONATHAN MAXIMILIAN Agus Dwi Hariyanto (Advisor and Examination Committee); Timoticin Kwanda (Examination Committee 1); Anik Juniwati (Examination Committee 2); Bramasta Putra Redyantanu (Examination Committee 3); Danny Santoso Mintorogo (Examination Committee 4); Rully Damayanti (Examination Committee 5) Universitas Kristen Petra Indonesian Digital Theses Undergraduate Thesis Laporan Perancangan Arsitektur Laporan Perancangan Arsitektur No. 00024670/ARS/2025; Jonathan Maximilian (B12210076) GALLERIES (ARCHITECTURE)--DESIGNS AND PLANS

Files