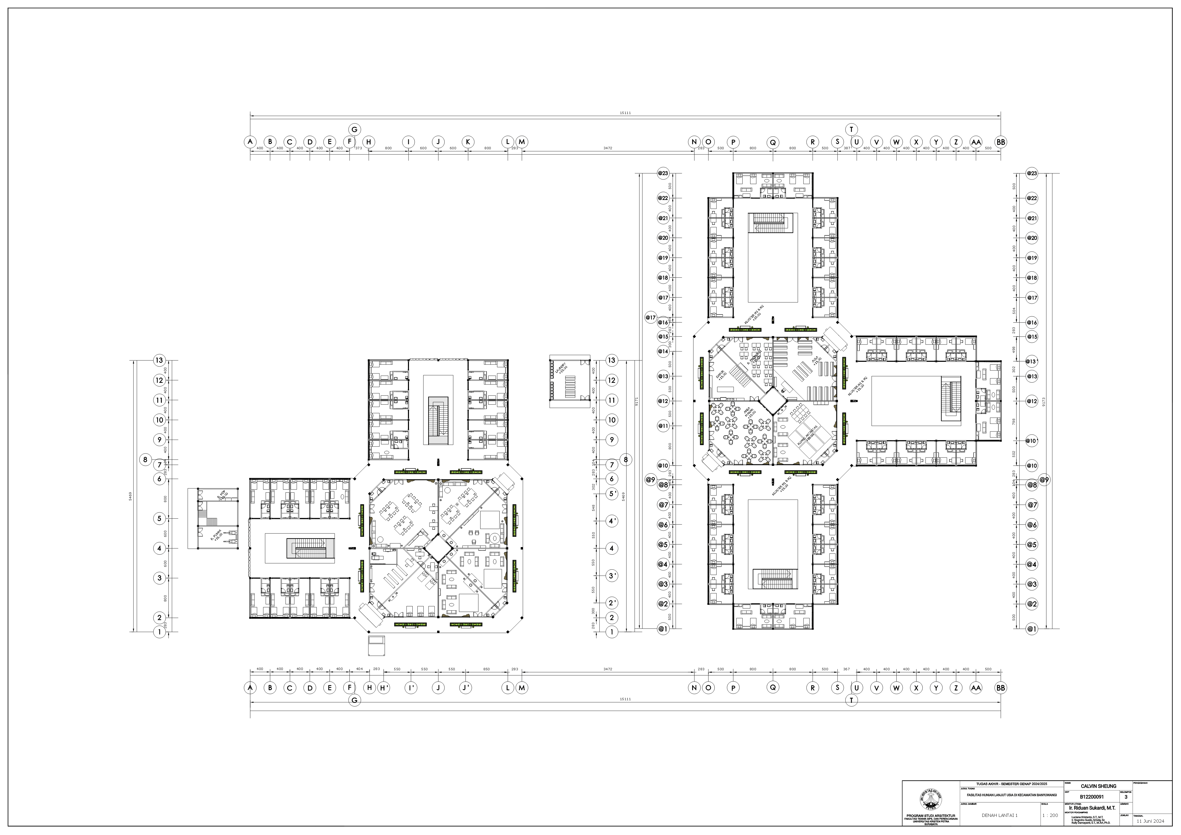
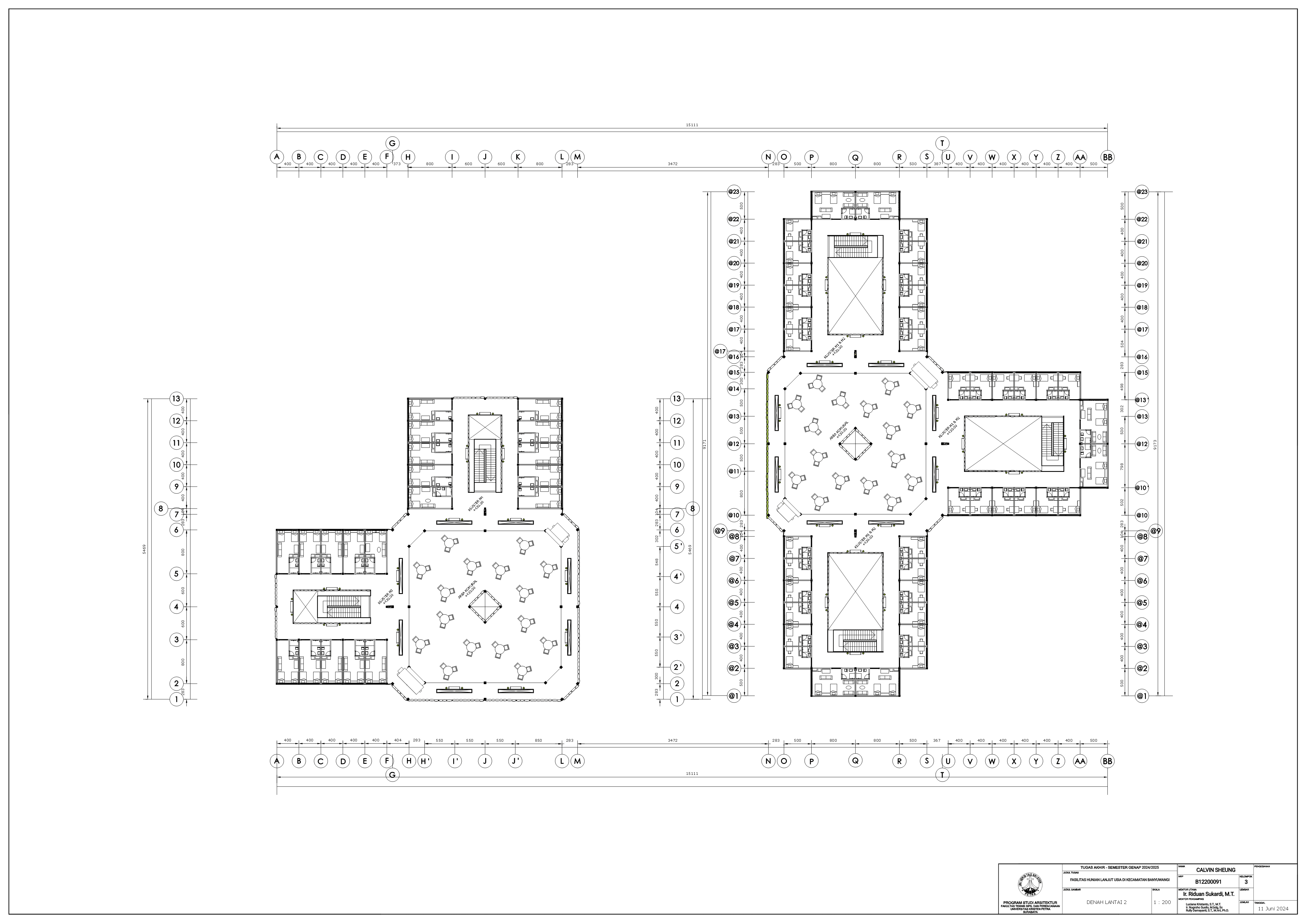
Fasilitas hunian lanjut usia di Kecamatan Banyuwangi

Kecamatan Banyuwangi merupakan salah satu kecamatan yang paling berkembang pesat sebagai kota utama Kabupaten Banyuwangi. Perkembangannya yang pesat didasari oleh pembangunan berkala serta eksposur yang berkala baik secara tingkat nasional dan internasional. Perkembangan tersebut juga didampingi dengan perkembangan jumlah penduduk yang meningkat pesat pada tahun ke tahun. Salah satu permasalahan tersebut ialah jumlah masyarakat yang telah lanjut usia dan kurangnya ketersediaan fasilitas lanjut usia yang dapat menampung dan membantu para lansia tersebut. Permasalahan ini didasari oleh ketersediaan fasilitas hunian lanjut usia yang terletak pada bagian-bagian luar kota yang jauh dari aktivitas padat dengan masyarakat lainya dan kesan fasilitasnya yang berkesan tertutup dan dipandang negatif oleh masyarakat luar. Untuk mengatasi kedua permasalahan ini, pembangunan fasilitas hunian lanjut usia yang mampu menghilangkan persepsi negatif akan fasilitasnya itu sendiri dengan pendekatan arsitektur perilaku yang mencoba membaurkan interaksi sosial antara masyarakat lansia dengan lingkungan luar sekaligus memberdayai penghuninya dengan sesuai dengan kebutuhannya baik secara fisik, psikis dan privasi sosial.

CALVIN SHEUNG Ir. Riduan Sukardi, M.T. (Advisor 1); Luciana Kristanto, S.T., M.T. (Advisor 2); Ir. V.P. Nugroho Susilo, M.Bdg.Sc. (Advisor 3); Rully Damayanti (Advisor 4); Timoticin Kwanda (Examination Committee 1); Irwan Santoso (Examination Committee 2); Ir. Andhi Wijaya, M.T. (Examination Committee 3); Bram Michael Wayne, S.T., M.Ars. (Examination Committee 4) Universitas Kristen Petra Indonesian Digital Theses Undergraduate Thesis Laporan Perancangan Arsitektur Laporan Perancangan Arsitektur No. 01024584/ARS/2024; Calvin Sheung (B12200091) OLD AGE HOMES-DESIGNS AND PLANS

Files